EasyManua.ls Logo

Temco ADF36-PN - Fireplace Clearances; Combustible Material Placement

Default Icon
11 pages
Print Icon
To Next Page IconTo Next Page
To Next Page IconTo Next Page
To Previous Page IconTo Previous Page
To Previous Page IconTo Previous Page
Loading...
DRAFTS
The location for the fireplace should be away from objects
that will create drafts and possibly hamper the normal flow
of air into the fire. Such objects are frequently opened
doors, ceiling fans and central heat air outlets and inlets.
GAS LINE
The gas line must be installed by a licensed gas installer
before the fireplace is framed in.
FIREPLACE CLEARANCES
The fireplace may be placed directly on a combustible floor,
against a combustible wall at marked clearances or on a
raised wooden platform.
If the fireplace is to be installed on a raised wooden
platform, the platform must be a continuous level surface.
The fireplace must be secured in place so it cannot shift
positions. The nailing flanges on the sides of the firebox
make securing it to the framing easy. They were designed
to allow the installation of 1/2" wallboard or plywood flush
with the face of the fireplace.
Only the header, (see figure 4), may rest on the standoffs
on top of the firebox.
When the fireplace is installed over carpeting, vinyl tile or
any combustible material other than wood flooring, it must
be installed on a metal or wood panel extending its full
width and depth. Alternatively the carpeting, vinyl tile, etc.,
may be removed beneath the fireplace before installing.
COMBUSTIBLE MATERIALS MUST NOT BE INSTALLED
OVER OR TOUCH ANY BLACK PAINTED SURFACE.
DO NOT BLOCK AIR OUTLETS AT SIDES OF FIREBOX
OPENING. DOING SO MAY RESULT IN A POTENTIAL
FIRE HAZARD.
The framing must rest on top of the standoffs.
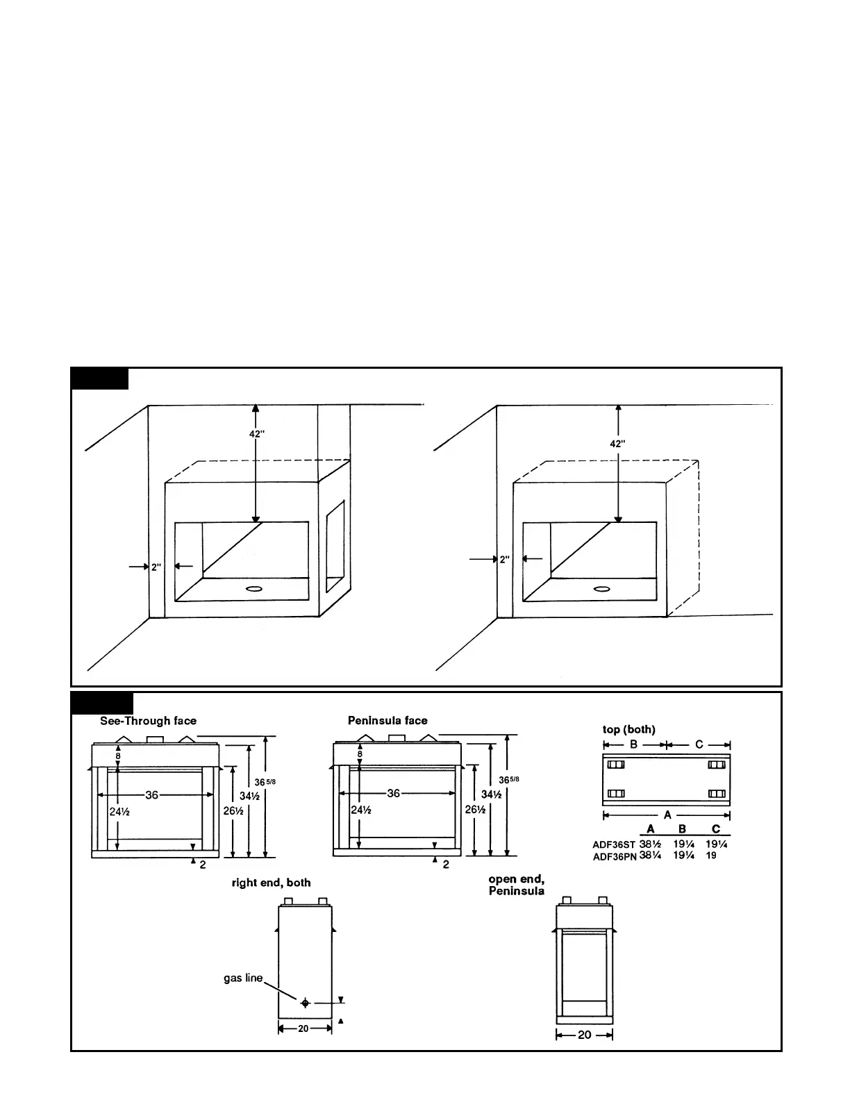
1. Sidewall Clearance: the clearance from the side of the
fireplace opening to any combustible wall should not be
less than 2", (see figure 2).
2. Ceiling Clearance: the ceiling height should not be less
than 42" from the top of the fireplace opening.
3. Floor Clearance: is 0" to a noncombustible floor and
must not be set on carpet or vinyl floor covering.
See-Through model
Peninsula model
Figure 2
Figure 3
Fireplace Dimensions (ins.)
4
3

Related product manuals