EasyManua.ls Logo

Temco ADF36-PN - Finishing the Fireplace; Finishing Your Fireplace

Default Icon
11 pages
Print Icon
To Next Page IconTo Next Page
To Next Page IconTo Next Page
To Previous Page IconTo Previous Page
To Previous Page IconTo Previous Page
Loading...
6
FINISHING YOUR FIREPLACE
A wide variety of finishing materials are available to finish
your TEMCO fireplace from formal wall treatments with
marble and mantels to rustic wood paneling, stone or brick.
Noncombustible facing material such as marble, brick or
ceramic tile may overlap the black face of the fireplace up to
the opening in either side of the fireplace.
Seal all joints between the black fireplace face and the wall
covering with a heat-resistant material such as rock wool
insulation or mortar. Be sure to use high temperature
adhesive or mortar when attaching brick, stone, marble or
tile to the face of the fireplace.
Check to see whether man-made brick and stone are made
of noncombustible materials before using them on the face
of the fireplace. Some of these products contain
combustible materials.
Noncombustible decorative facing materials may cover the
black painted metal faces of the fireplace.
Combustible wall coverings such as paneling or wallboard
may not overlap the black face of the fireplace. The space
between the wall covering and the fireplace should be
sealed with a heat-resistant material such as rock wool
insulation or mortar, (see figure 6 and 7).
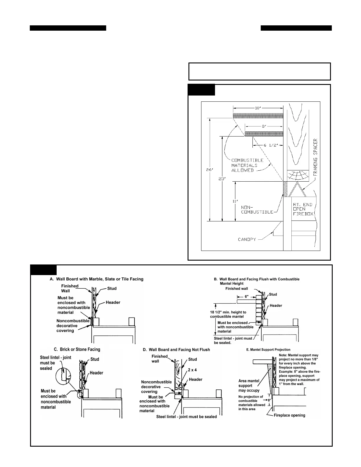
MANTEL CLEARANCES: With the firebox installed, the
lower edge of the mantel piece must not be less than 11”
from the top edge of the fireplace opening. The mantel
piece profile must fall within the cross-section shown in
figure 6.
HEARTH EXTENSION: A hearth extension is not
required for this fireplace. A hearth extension may be used
if desired for aesthetic purposes only.
Figure 6
Figure 7
NOTE: An L-shaped steel metal lintel must be installed across the top of the firebox opening where facing
material (such as brick or stone) is used on the face of the firebox. It acts as a support/firestop. It should be
attached to the face of the fireplace with screws and sealed to the fireplace with a heat-resistant sealer.
WARNING: THESE VENT FREE FIREPLACES ARE
NOT TO BE USED WITH GLASS DOORS.

Related product manuals