EasyManua.ls Logo

Tempstar F9MXE - Page 51

Default Icon
58 pages
Print Icon
To Next Page IconTo Next Page
To Next Page IconTo Next Page
To Previous Page IconTo Previous Page
To Previous Page IconTo Previous Page
Loading...
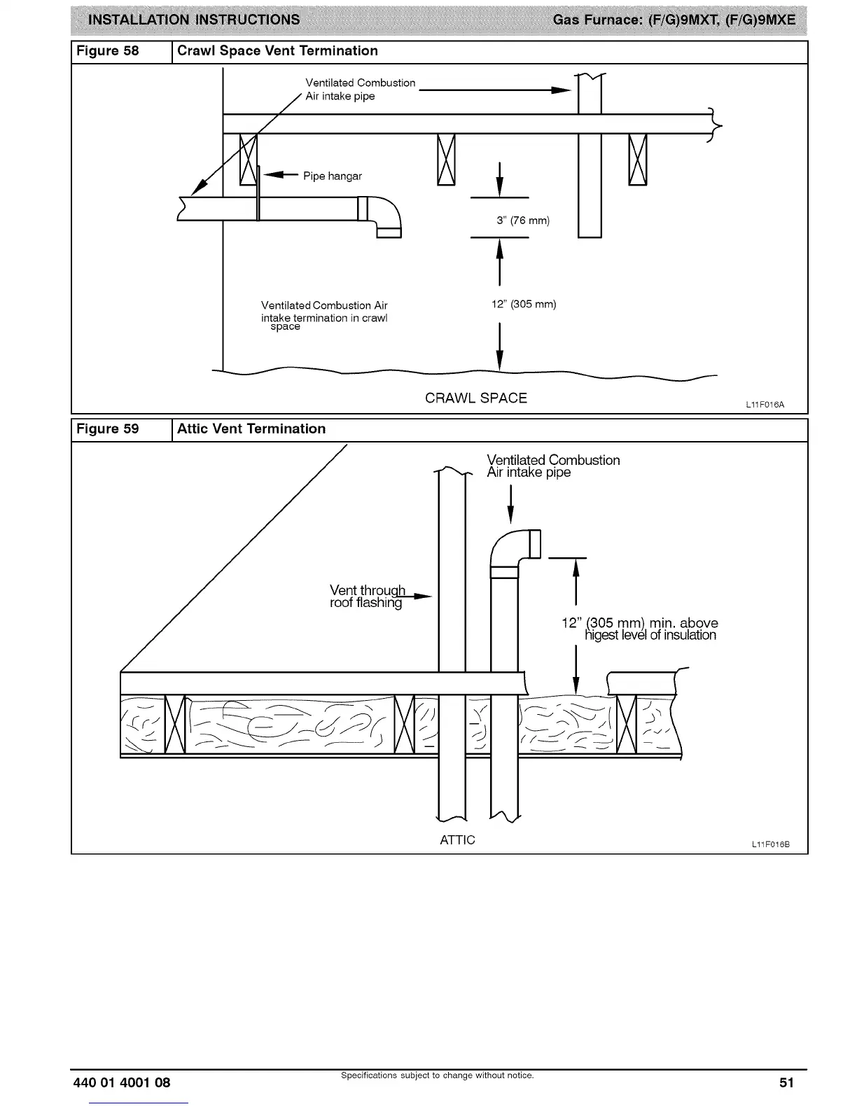
Crawl Space Vent Termination
Figure 58
?
Ventilated Combustion
Air intake pipe
/
_1_ Pipe hangar
Ventilated Combustion Air
intake termination in crawl
space
+
3" (76 mm)
t
12"(305ram)
CRAWL SPACE
Figure 59 _Attic Vent Termination
t throuhgb.__._
roof flashmng
Ventilated Combustion
Air intake pipe
-7
L11F016A
ATTIC
L11F016B
440 01 4001 08 Specifications subject to change without notice. 51

Related product manuals