EasyManua.ls Logo

TES Series - Smokepipe and Chimney Requirements; Install Smokepipe

Default Icon
15 pages
Print Icon
To Next Page IconTo Next Page
To Next Page IconTo Next Page
To Previous Page IconTo Previous Page
To Previous Page IconTo Previous Page
Loading...
8
8.
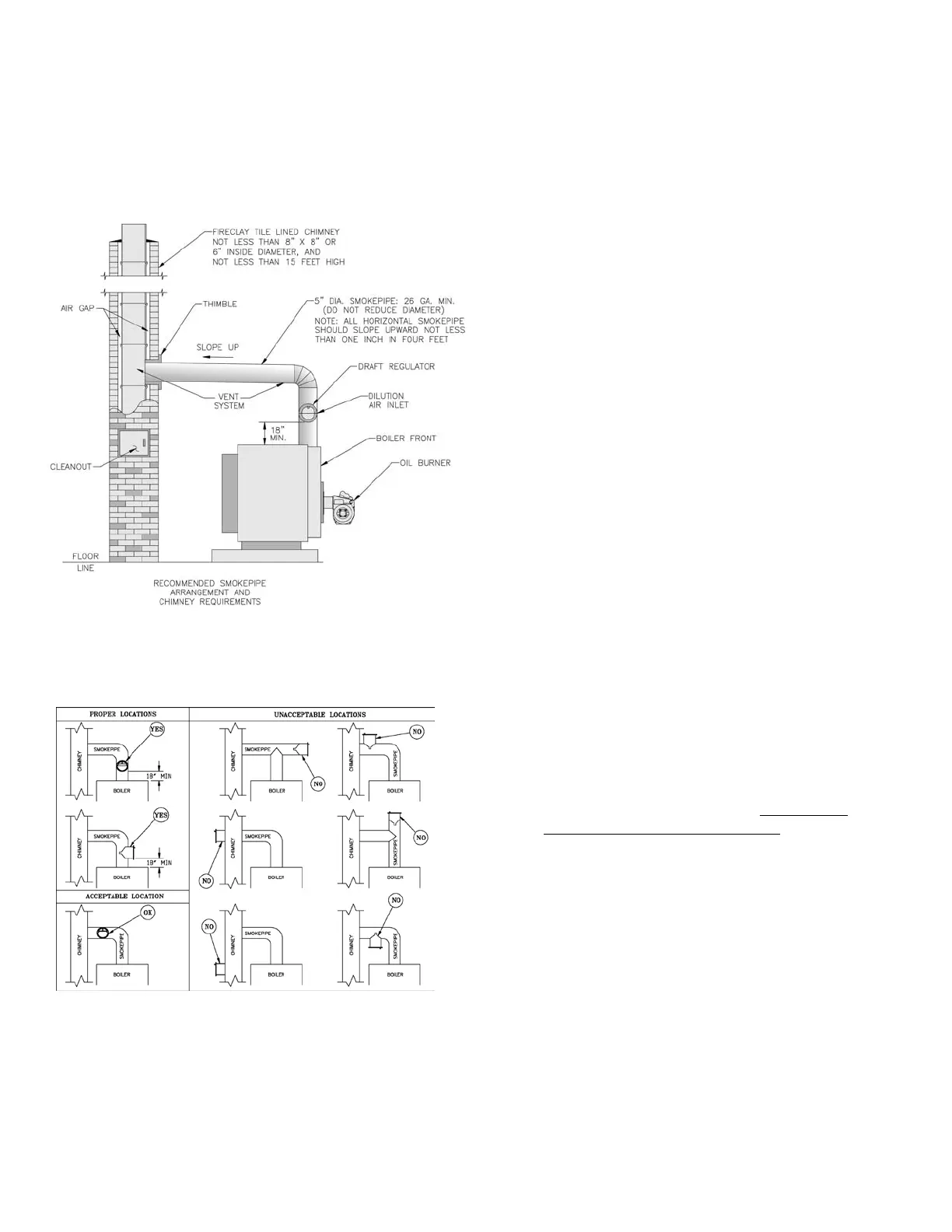
INSTALL SMOKEPIPE — The TES boiler should be vented
into a reclay tile-lined masonry chimney or a chimney
constructed from Type L Vent or a factory built
chimney that complies with the Type HT requirement,
of UL103. The chimney and vent pipe shall have a
sufcient draft at all times, to assure safe proper
operation of the boiler. See Figure 7 for recommended
installation.
Figure 8
Figure 7
a home without insulation or storm windows. With
increasing fuel prices that home probably has been
insulated and tted with storm windows so that the
heat loss of the home has been reduced. This
requires less fuel to be burned and sends less heat
up the chimney.
A new boiler probably has a higher efciency than
the boiler being replaced. That probably means that
the stack temperature from the new boiler will be
lower than that from the old boiler and with less
room air being drawn up the chimney to dilute the
stack gases. The combination of a large uninsulated
chimney, reduced ring rate, reduced ring time,
lower stack temperature and less dilution air can, in
some cases, contribute to the condensing of small
amounts of water vapor in the chimney. Such
condensation, when it occurs, can cause chimney
deterioration. In extreme cases, condensed water
may be visible on the outside of the breeching or
chimney. In those extreme cases, the chimney may
have to be lined to insulate the chimney and thus
prevent the condensation. The addition of dilution
air into the chimney may assist in drying the
chimney interior surfaces.
C. Heat extractors mounted into the breeching are not
recommended.
9.
INSTALL ELECTRIC WIRING
A. Follow the National Electrical Code and local
regulations. A separate electrical circuit must be run
from the main electrical service with an over-
current device/disconnect in the circuit. A service
switch is recommended and may be required by
some local jurisdictions. Wiring should conform to
Figures 11A, 11B and 11C.
B. CANADA — Refer to CSA standard C22.2 Part 1,
1990, Electrical Features of Fuel Burning Equip-
ment (Gas and Oil).
C. If boiler is installed in Canada, a blocked vent safety
switch must be installed. Refer to Blocked Vent
Safety Switch Instruction Supplement provided
with boiler (Canada only).
10.
FUEL UNITS AND OIL LINES
Use exible oil line(s) so that Swing Door can be
opened without disconnecting oil supply.
A supply line fuel oil lter is recommended as a
minimum for all ring rates but a pleated paper fuel oil
lter is recommended for the lowest (.6 GPH) ring
rate application to prevent nozzle fouling.
SINGLE-PIPE OIL LINES — Standard burners are
provided with single-stage 3450 rpm fuel units with the
by-pass plug removed for single-pipe installations.
The single-stage fuel unit may be installed single-pipe
with gravity feed or lift. Maximum allowable lift is 8
feet. See Figure 9.
A. Install the draft regulator following the instructions
furnished with the regulator. See Figure 8 for
alternate draft regulator locations.
B. Consider the chimney overall. Chimneys that have a
high heat loss may become less suitable as the heat
loss of the home goes down and the efciency of
the boiler installed goes up. Most homes have a
chimney appropriate for the fuel and the era in
which the home was built. That may have been a
coal red or an inefcient oil red boiler built into