EasyManua.ls Logo

THOMSON THPRIMO245DFULL - Page 12

THOMSON THPRIMO245DFULL
Print Icon
To Next Page IconTo Next Page
To Next Page IconTo Next Page
To Previous Page IconTo Previous Page
To Previous Page IconTo Previous Page
Loading...
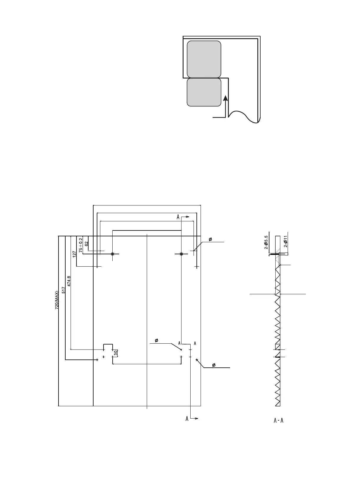
Il doit y avoir un espace de 50mm au
minimum entre le bord de la porte du
lave-vaisselle etles murs ou les meubles
qui lui sont adjacents.
Préparer et assembler un panneau décoratif (non fourni)
(Unità : mm)

3D
. #2
3D #2
2#+ #2
2.
3
 2

 2

2 2
2 ?,M
+
Lave-vaisselle
Meuble
Porte du
lave-vaisselle
Espace de50 mm
au minimum
FR-11

Related product manuals