Power Supply Cord Kit
The power supply cord will be connected to the terminal connection block located behind the back-panel
access cover by manufacture. This appliance should be connected by means of permanent "hard wiring"
or by means of a power supply cord kit.
Risk of fire or electrical shock exists if an incorrect size range cord kit is used, the
Installation Instructions are not followed, or the strain relief bracket is discarded.
Terminal on end of wires must be either closed loop or open spade lug with upturned ends. Cord must
have strain-relief clamp.
CAUTION: Do not loosen the nuts which secure the factory-installed range wiring to terminal block while
connecting range. Electrical failure or loss of electrical connection may occur.
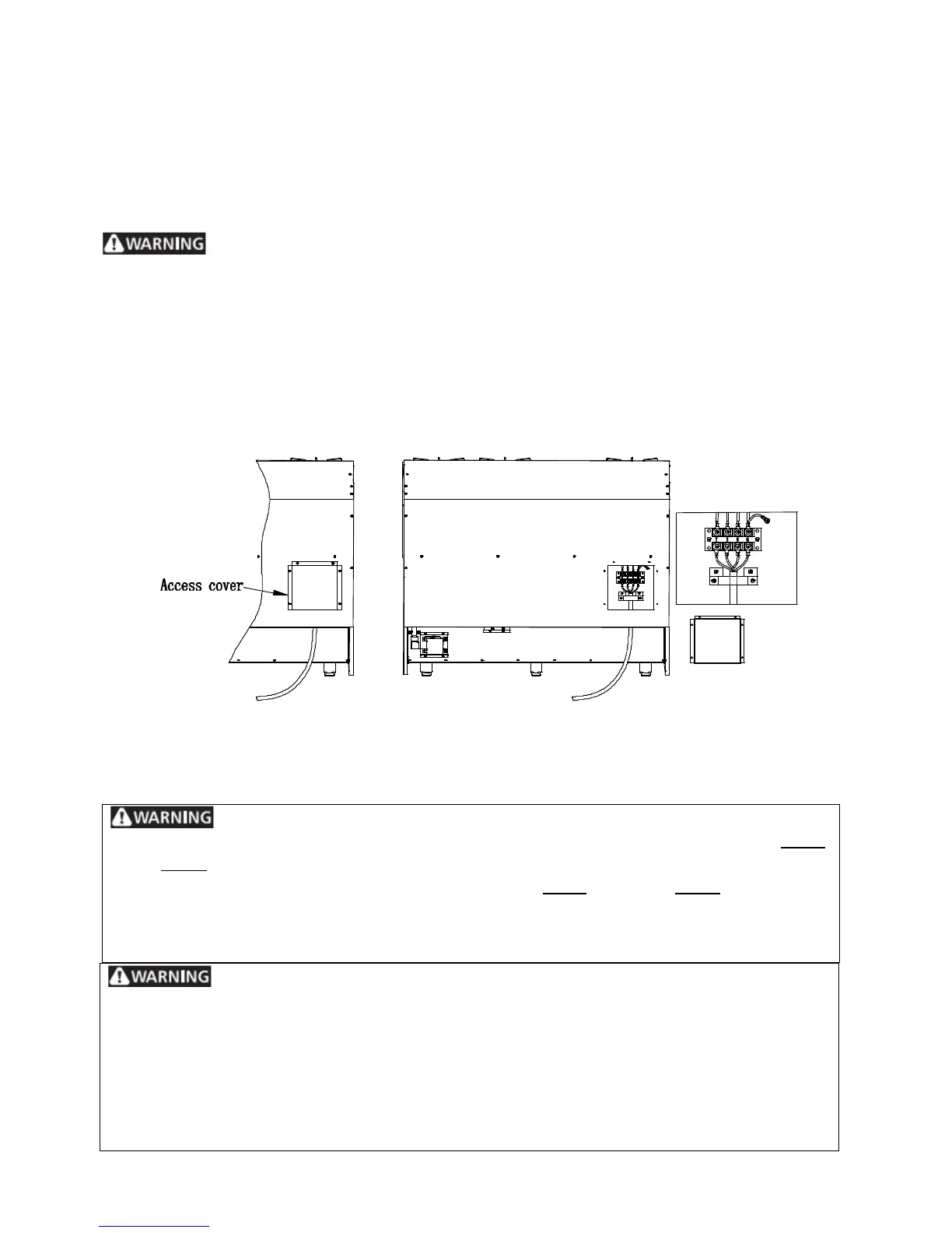
Access to Terminal Block
Remove the screws at the lower end of the rear access cover and take it down to expose range terminal
connection block.
a) For 30-inch and 36-inch Dual Fuel Range, only a 4-conductor power-supply cord kit rated __240__
volts, __30A__ amperes minimum and marked for use with ranges shall be used;
For 48-inch Dual Fuel Range, it should be equipped with a __240__ volts rate, __40A__ amperes
minimum 4-conductor power-supply cord kit.
b) used closed-loop terminal that the cord kit is to employ, as appropriate for the appliance supply
terminals.
Electrical Shock Hazard
•Electrical ground is required on this appliance.
•Do not connect to the electrical supply until appliance is permanently grounded.
•Disconnect power to the circuit breaker or fuse box before making the electrical connection.
• This appliance must be connected to a grounded, metallic, permanent wiring system, or a
grounding connector should be connected to the grounding terminal or wire lead on the appliance.
Failure to do any of the above could result in a fire, personal injury or electrical shock.