EasyManua.ls Logo

THOR HRD3606U - Top Hood and Cabinet Specifications

THOR HRD3606U
71 pages
Print Icon
To Next Page IconTo Next Page
To Next Page IconTo Next Page
To Previous Page IconTo Previous Page
To Previous Page IconTo Previous Page
Loading...
21
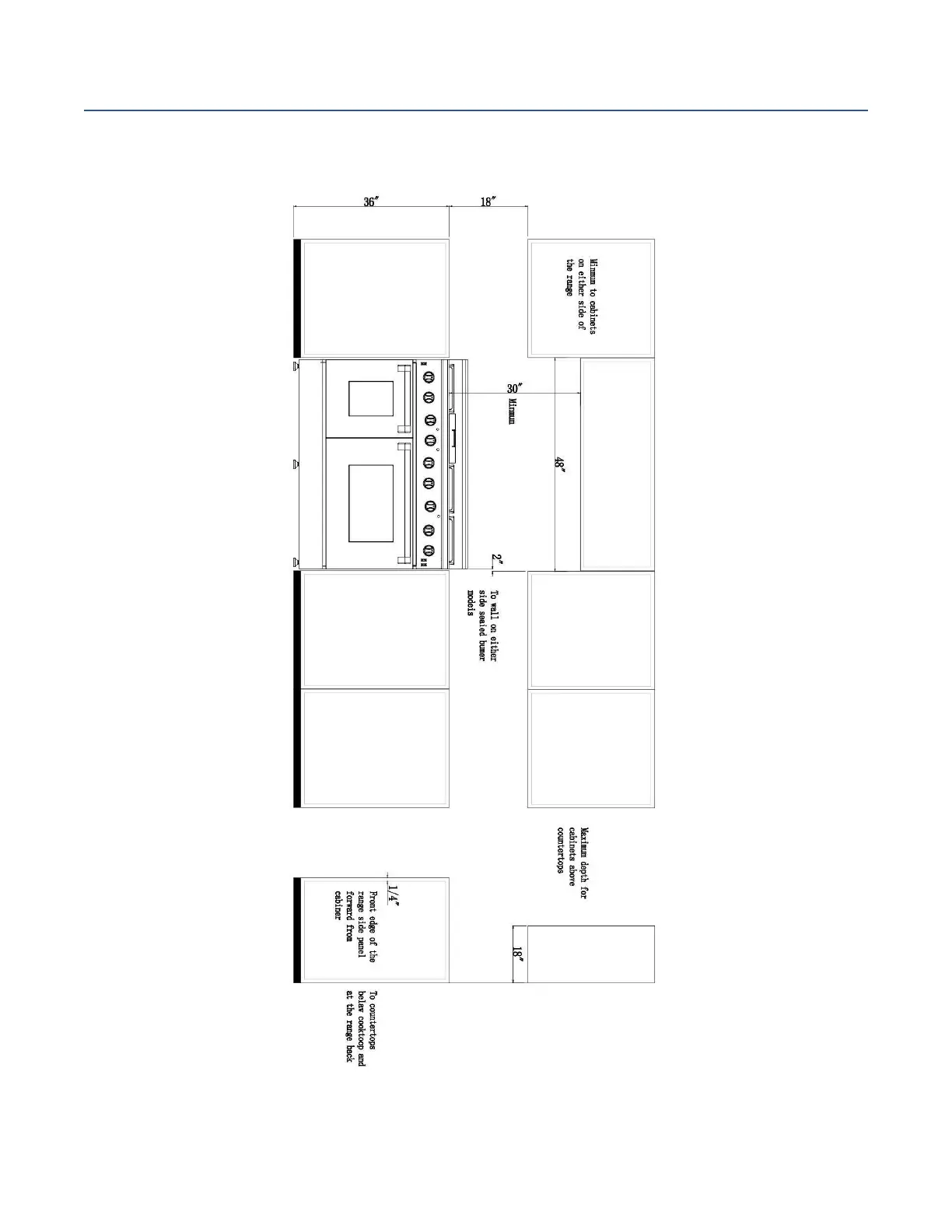
Installation Instructions
48” Dual Fuel Range Clearance

Table of Contents

Related product manuals