EasyManua.ls Logo

THOR HRD4803U - Page 22

THOR HRD4803U
71 pages
Print Icon
To Next Page IconTo Next Page
To Next Page IconTo Next Page
To Previous Page IconTo Previous Page
To Previous Page IconTo Previous Page
Loading...
21
Installation Instructions
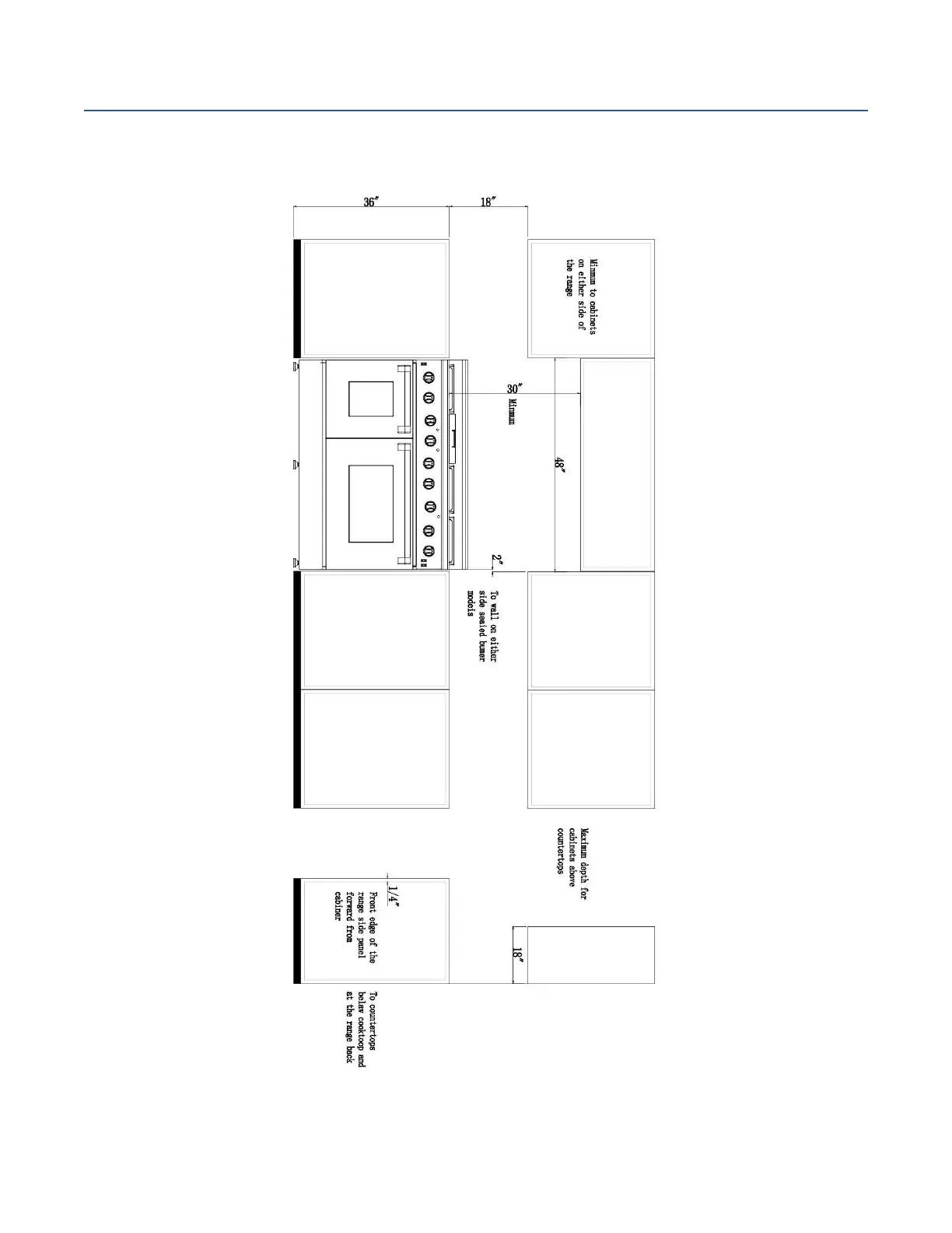
48” Dual Fuel Range Clearance

Table of Contents

Related product manuals