EasyManua.ls Logo

Thorn security MR300 - Electrical Characteristics

Default Icon
7 pages
Print Icon
To Next Page IconTo Next Page
To Next Page IconTo Next Page
To Previous Page IconTo Previous Page
To Previous Page IconTo Previous Page
Loading...
© 1997 Thorn Security Limited PAGE 5 of 7
Registered Office: Security House The Summit Hanworth Road Sunbury-on-Thames Middlesex TW16 5DB
M300 SERIES
01A-02-D4
02 2/97
EQUIPMENT:
PUBLICATION:
ISSUE No. & DATE:
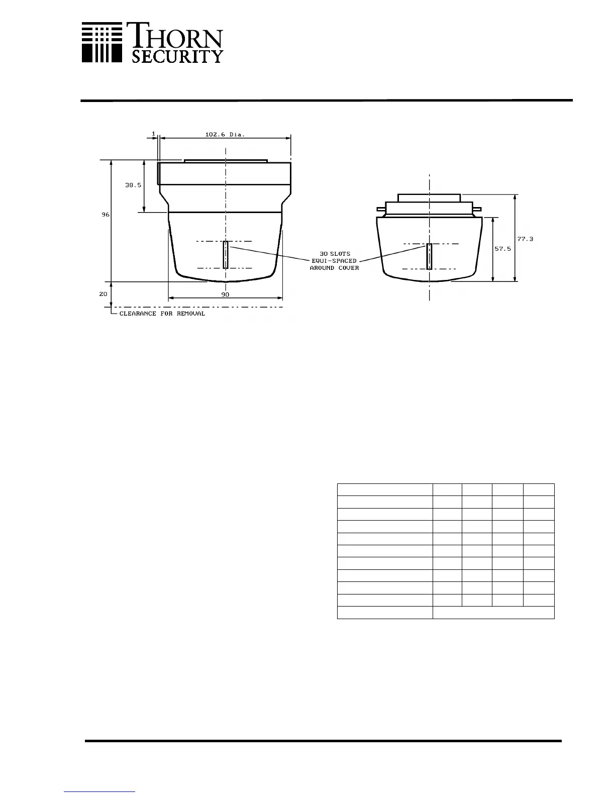
Fig. 5 Overall Dimensions of the MR300 Detector
4.3 ELECTRICAL
Characteristics
The following characteristics shown in Table 1 are taken at
25
o
C with an operating voltage of 20V unless otherwise
specified. The alarm load presented to the controller by the
detector is shown in Fig. 6 overleaf.
Characteristics Min. Typ. Max. Unit
Operating Voltage [d.c.] 15 20 24 V
Quiescent Current 100 µA
Switch-on-Surge 100 µA
Stabilisation Time 30 sec
Alarm Current 5 25 60 mA
Alarm Current [Ex types] 5 20 50 mA
Holding Current 1 6 mA
Holding Voltage 2 8 V
Reset Time 2 sec
Remote LED drive Alarm Current less 10 mA
Table. 1 Electrical Characteristics
Environmental
Operating Temperature: -20
o
C to +70
o
C
but see note below.
Storage Temperature: -25
o
C to +80
o
C
Note: Operation below 0
o
C is not recommended un-
less steps are taken to eliminate condensation
and hence ice formation on the detector.
Relative Humidity: 95% non-condensing
Shock:
Vibration: To BS 5445:Pt 7
Impact: [EN54-7]
Corrosion:
EMC: Equals or exceeds the
requirements of
BS EN 50081-1 and
BS EN 50082-1.
}