EasyManua.ls Logo

Trane 4NXCA024AC3HCA - Outline Drawings

Trane 4NXCA024AC3HCA
12 pages
Print Icon
To Next Page IconTo Next Page
To Next Page IconTo Next Page
To Previous Page IconTo Previous Page
To Previous Page IconTo Previous Page
Loading...
18-AD28D1-2 9
Installer’s Guide
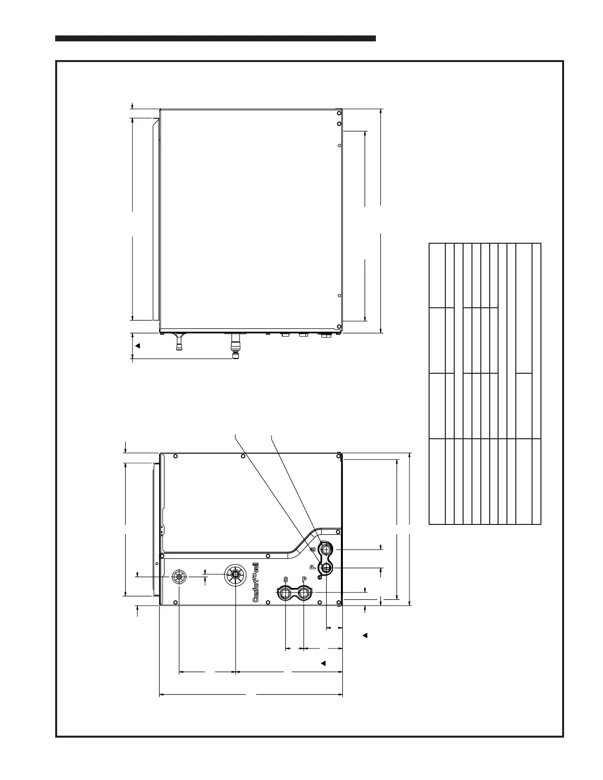
Outline Drawing for 4NXCA018AC3HCA, 4NXCA024AC3HCA, 4NXCB025AC3HCA, 4NXCB031AC3HCA,
4NXCB032AC3HCA, and 4NXCB036AC3HCA
(All dimensions are in inches)
MODEL
4NXCA018AC3HCA
4NXCA024AC3HCA
4NXCB025AC3HCA
4NXCB031AC3HCA
4NXCB032AC3HCA
4NXCB036AC3HCA
WEIGHT (LBS.) 32 36 38
REFRIGERANT CONTROL TXV (NON-BLEED)
HEIGHT "A" (IN.) 17-1/2 18-1/4 22-1/2
OVERALL WIDTH "B" (IN.) 14-1/2 17-1/2 17-1/2
OPENING WIDTH "C" (IN.) 13-5/8 16-5/8 16-5/8
TOP OPENING "D" 12-3/4 15-3/4 15-3/4
GAS CONNECTION 3/4 BRAZE
LIQUID CONNECTION 3/8 BRAZE
MATCHED FURNACE WIDTH
(NO ADAPTER REQUIRED)
14-1/2 17-1/2
DRAIN PAN PLASTIC
From Dwg. D344665
Dimension may vary slightly by coil model
15/16
D
2-3/4
1/4
5-3/8
A
1-3/4
3-11/16
1-9/16
1-1/4
3-5/8
1-3/4
C
PLUGGED
SECONDARY DRAIN
3/4” NPT
FOR VERTICAL POSITION
PRIMARY DRAIN
3/4” NPT
FOR VERTICAL POSITION
B
18-1/8 OPENING
IN WRAPPER
21-1/2
7/8
19-3/8
2-1/2
10-1/4

Related product manuals