EasyManua.ls Logo

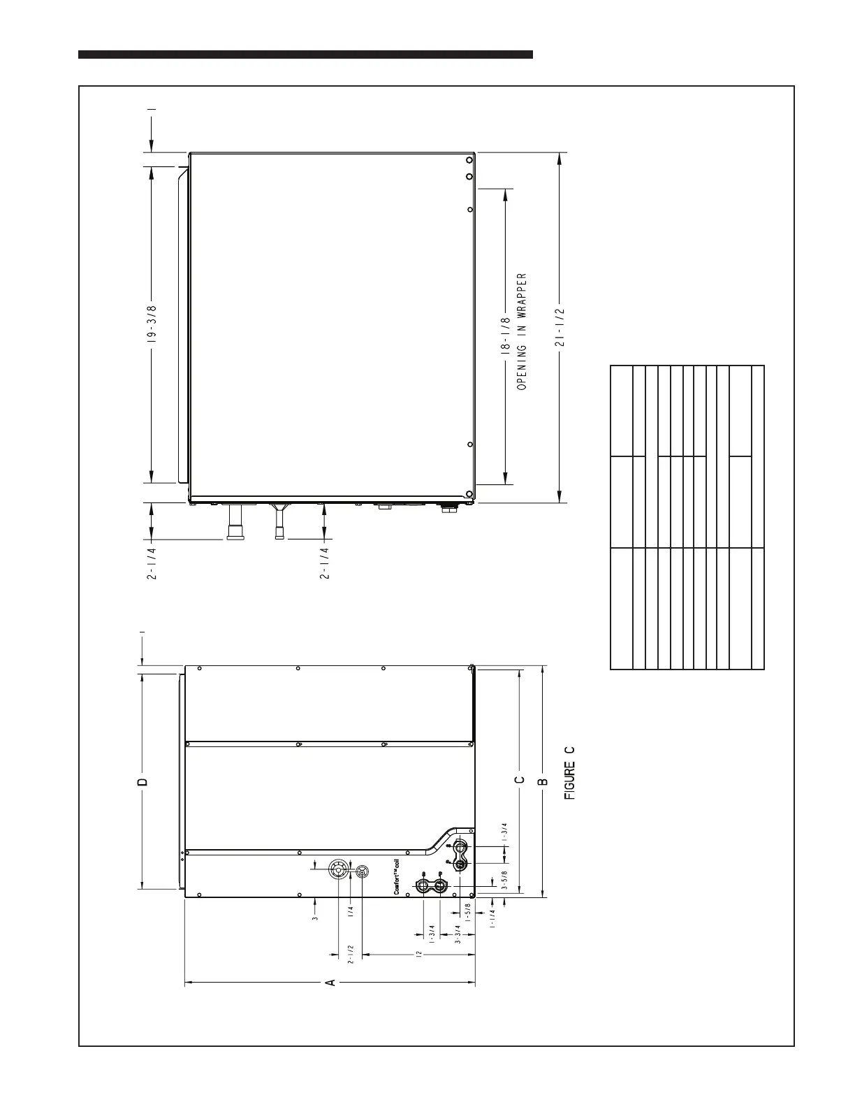
Trane 4TXCA032DS3HCA - Further Outline Drawings; Figure C: Outline Drawing and Model Specifications

Trane 4TXCA032DS3HCA
12 pages
Print Icon
To Next Page IconTo Next Page
To Next Page IconTo Next Page
To Previous Page IconTo Previous Page
To Previous Page IconTo Previous Page
Loading...
18-AD35D1-2D-EN 9
Installer’s Guide
MODEL 4TXCD008DS3 4TXCD010DS3
WEIGHT (LBS.) 72 81
REFRIGERANT CONTROL TXV (NON-BLEED)
HEIGHT "A" (IN.) 26-7/8 30-11/16
OVERALL WIDTH "B" (IN.) 24-1/2 24-1/2
OPENING WIDTH "C" (IN.) 23-5/8 23-5/8
TOP OPENING "D" 22-3/4 22-3/4
GAS CONNECTION 7/8
LIQUID CONNECTION 3/8
MATCHED FURNACE WIDTH
(NO ADAPTER REQUIRED)
24-1/2 24-1/2
DRAIN PAN PLASTIC
Outline Drawing for Models: 4TXCD008DS3, 4TXCD010DS3
From Dwg. D345686 RevB

Related product manuals