EasyManua.ls Logo

Trane 4TXCD008DS3HCA - Page 8

Trane 4TXCD008DS3HCA
12 pages
Print Icon
To Next Page IconTo Next Page
To Next Page IconTo Next Page
To Previous Page IconTo Previous Page
To Previous Page IconTo Previous Page
Loading...
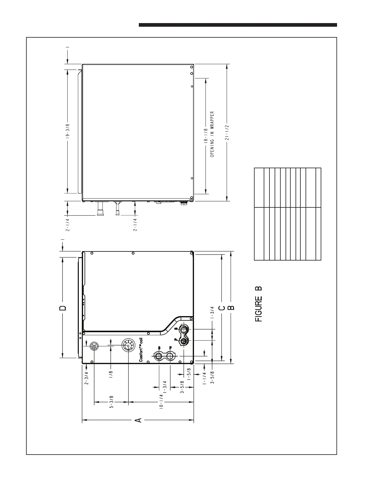
8 18-AD35D1-2D-EN
Installer’s Guide
From Dwg. D345686 RevA
MODEL 4TXCB003DS3
WEIGHT (LBS.) 50
REFRIGERANT CONTROL TXV (NON-BLEED)
HEIGHT "A" (IN.) 17-1/2
OVERALL WIDTH "B" (IN.) 17-1/2
OPENING WIDTH "C" (IN.) 16-5/8
TOP OPENING "D" 15-3/4
GAS CONNECTION 3/4
LIQUID CONNECTION 3/8
MATCHED FURNACE WIDTH
(NO ADAPTER REQUIRED)
17-1/2
DRAIN PAN PLASTIC
Outline Drawing for models: 4TXCB003DS3

Related product manuals