EasyManua.ls Logo

Trane 4TXK6548G1000AA - Page 110

Trane 4TXK6548G1000AA
187 pages
To Next Page IconTo Next Page
To Next Page IconTo Next Page
To Previous Page IconTo Previous Page
To Previous Page IconTo Previous Page
Loading...
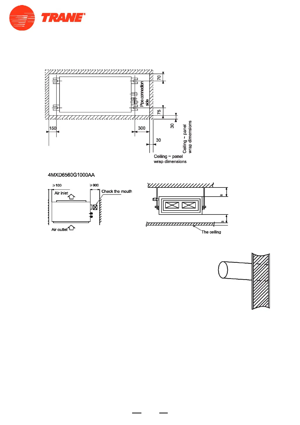
4MXD6512G1000AA 4MXD6518G1000AA 4MXD6524G1000AA 4MXD6536G1000AA 4MXD6548G1000AA
After selecting the unit installation location, proceed the
following steps:
1. Drill a hole in the wall and insert the connecting pipe and wire through a PVC
wall-through tube purchased locally. The wall hole shall be with a outward down
slope of at least 1/100 .
2. Before drilling check that there is no pipe or reinforcing bar just behind the drilling
position . Drilling shall avoid at positions with electric wire or pipe .
3. Mount the unit on a strong and horizontal building roof . lf the base is not firm,
it will cause noise, vibration or leakage .
4. Support the unit firmly .
5. Change the form of the connection pipe, connection wire and drain pipe so that
they can go through the wall hole easily .
8 8
300
300
(600× 600)

Related product manuals