EasyManua.ls Logo

Trane 4TXK6548G1000AA - Page 20

Trane 4TXK6548G1000AA
187 pages
Print Icon
To Next Page IconTo Next Page
To Next Page IconTo Next Page
To Previous Page IconTo Previous Page
To Previous Page IconTo Previous Page
Loading...
181
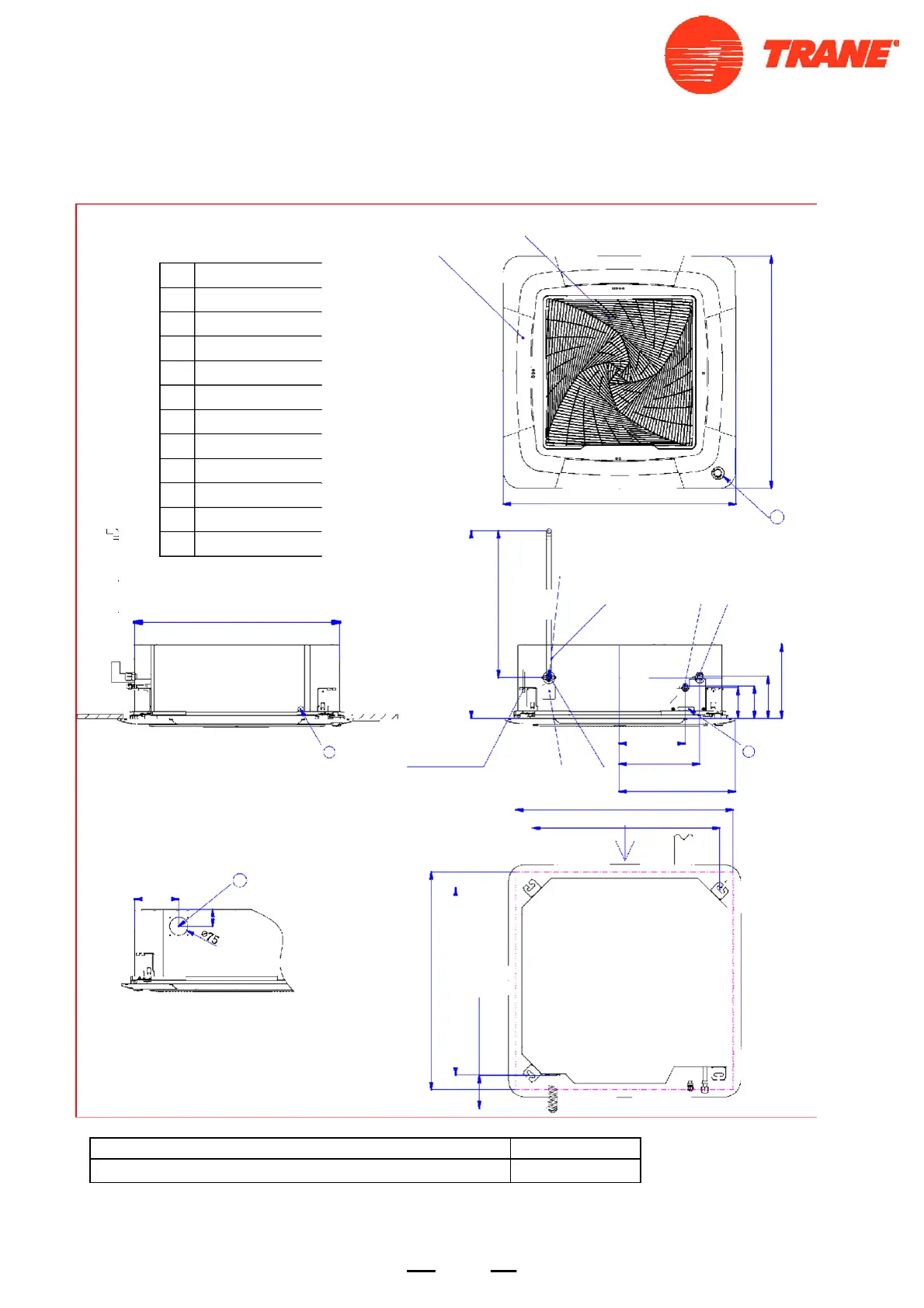
Code
Name
1
Gas pipe
2
Liquid pipe
3
Observe plate
4
Drain pipe
5
Air return grille
6
Air outlet
7
Drain soft pipe
(accessory)
8
Power supply inlet
9
PQ line inlet
10
Fresh air inlet
11
Move eye( optional)
68
V
iew
A
840
10
9
Suspend
ing
bolt 4-M10
Ceiling hole 890mm
Gap between suspending rod 765mm
Less than 100
Hoisting height less than
600mm
©
600
Adjustable(0
-
360)
©
Ceiling hole 890mm
Gap between suspending rod 765mm
Decoration board 950mm
Drain pipe
connection
©
A
©
270
330
470
© ©
126
130
170
8
Decoration board 950mm
11
A
2.5 Dimension -4MXC6560G1000AA
Model A (mm)
4MXC6560G1000AA
288
11