EasyManua.ls Logo

Trane 4TXK6548G1000AA - Page 22

Trane 4TXK6548G1000AA
187 pages
Print Icon
To Next Page IconTo Next Page
To Next Page IconTo Next Page
To Previous Page IconTo Previous Page
To Previous Page IconTo Previous Page
Loading...
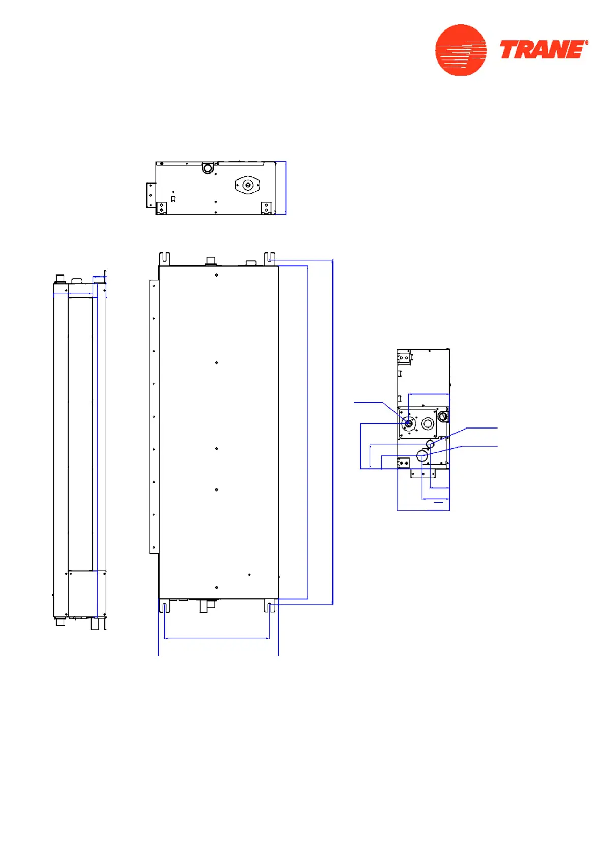
2.7 Dimension
-
4MXD6518G1000AA
185
1 4 4
水泵排
液管(φ9.52mm)
158
86
45
69
9 7
1 8 5
气管(φ15.88mm)
1212
1170
3 6 9
4 2 0
45
50
90
50
960
160

Related product manuals