EasyManua.ls Logo

Trane 4TXK6548G1000AA - 4.4 4 MXD6512 G1000 AA 4 MXD6518 G1000 AA 4 MXD6524 G1000 AA Wiring Diagrams

Trane 4TXK6548G1000AA
187 pages
Print Icon
To Next Page IconTo Next Page
To Next Page IconTo Next Page
To Previous Page IconTo Previous Page
To Previous Page IconTo Previous Page
Loading...
34
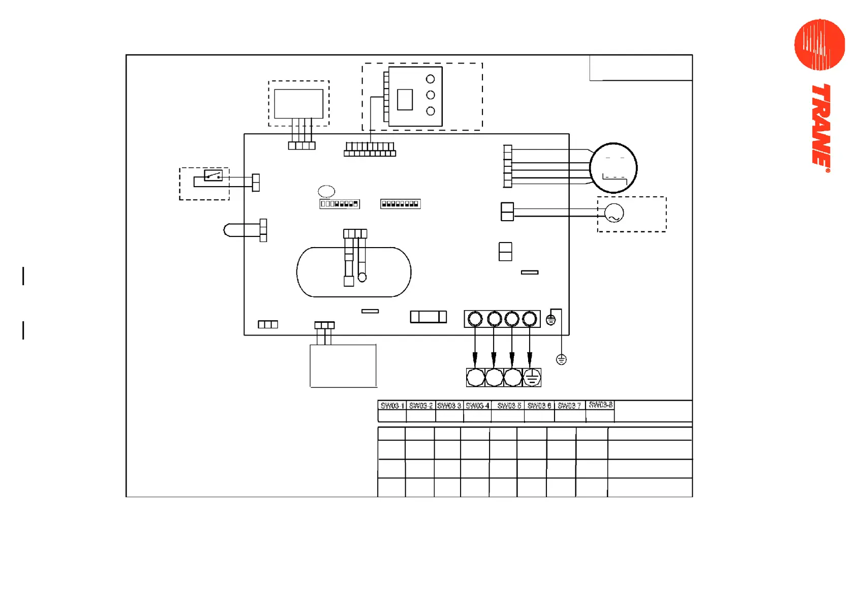
4.SW03-5->SW03-08 ARE USED FOR ADDRESS SETTING ON THE
SITUATION OF ONE WIRED CONTROLLER CONTROL MORE THAN
ONE INDOOR UNIT.
5.REFER TO SERVICE MANUL TO GET MUCH MORE DETAILS
ABOUT THE STATIC PRESSURE LEVEL SETTING.
NOTE:
1.DASHED PARTS ARE OPTIONAL.
2.USER SHOULD NOT SET SW01 AND
SW03 WITHOUT GUIDENCE.
IT CAN CONNECT ANOTHER INDOOR UNIT BY CN22 OR CN22-1.
WHEN TWO WIRD CONTROLLERS CONTROL ONE INDOOR UNIT,
THE WIRED CONTROLLER NEED CONNECT WITH CN22 AND CN22-1.
3.WHEN ONE WIRED CONTROLLER CONTROL MULTIPLE INDOOR UNIT,
FLOAT
SWITCH
ROOMCARD
CN16
CN13
CN22
-
1
C BA
WIFI
MODULE
CN22
O N
O F F
PIPING
TEMP.
SENSOR
WIRED
CONTROLLER
COMANDO A FILO
C B A
C BA
12345678
CN34
SW01
Heater_L
TEMP.
SENSOR
ROOM
CN41
12345678
SW03
-
1 SW03
-
2
SW01
-
1 SW01
-
2
OFF
CH4
OFF
ON
ON
SW03
T5.0A
-
250VAC
CN21
OFF
OFF
ON
ON
FUSE1
TO OUT
DOOR UNIT
OFF
ON
SW01-3
SW01
-
4
SW03
-
3 SW03
-
4
OFF
OFF
OFF
OFF
INFRARED
REMOTE
RECEIVER
(WITHOUT
DIGITAL
DISPALY)
OFF
OFF
OFF
OFF
N L S
1 2 3
1 2 3
CN5
CN4
CN6
CN1
SW01-5 SW01-6
OFF
OFF
OFF
SW03
-
5 SW03
-
6
OFF
Heater_N
OFF
OFF
OFF
OFF
CH2
CH1
Y/G
SW01-7 SW01-8
OFF
OFF
OFF
SW03
-
7
OFF
Y/G
MOTORE VENTILATORE
ON
ON
ON
OFF
SW03-8
DC FAN MOTOR
Y/G:YELLOW/GREEN
0150538194
M
M
4MXD6512G1000AA
4MXD6518G1000AA
4MXD6524G1000AA
FOR ALL
DUCTED MODEL
MODEL
PUMP
4.4 4MXD6512G1000AA 4MXD6518G1000AA 4MXD6524G1000AA

Related product manuals