EasyManua.ls Logo

Trane A4AC3018A - Page 30

Trane A4AC3018A
32 pages
Print Icon
To Next Page IconTo Next Page
To Next Page IconTo Next Page
To Previous Page IconTo Previous Page
To Previous Page IconTo Previous Page
Loading...
30 88-A4AC3001-1H-EN
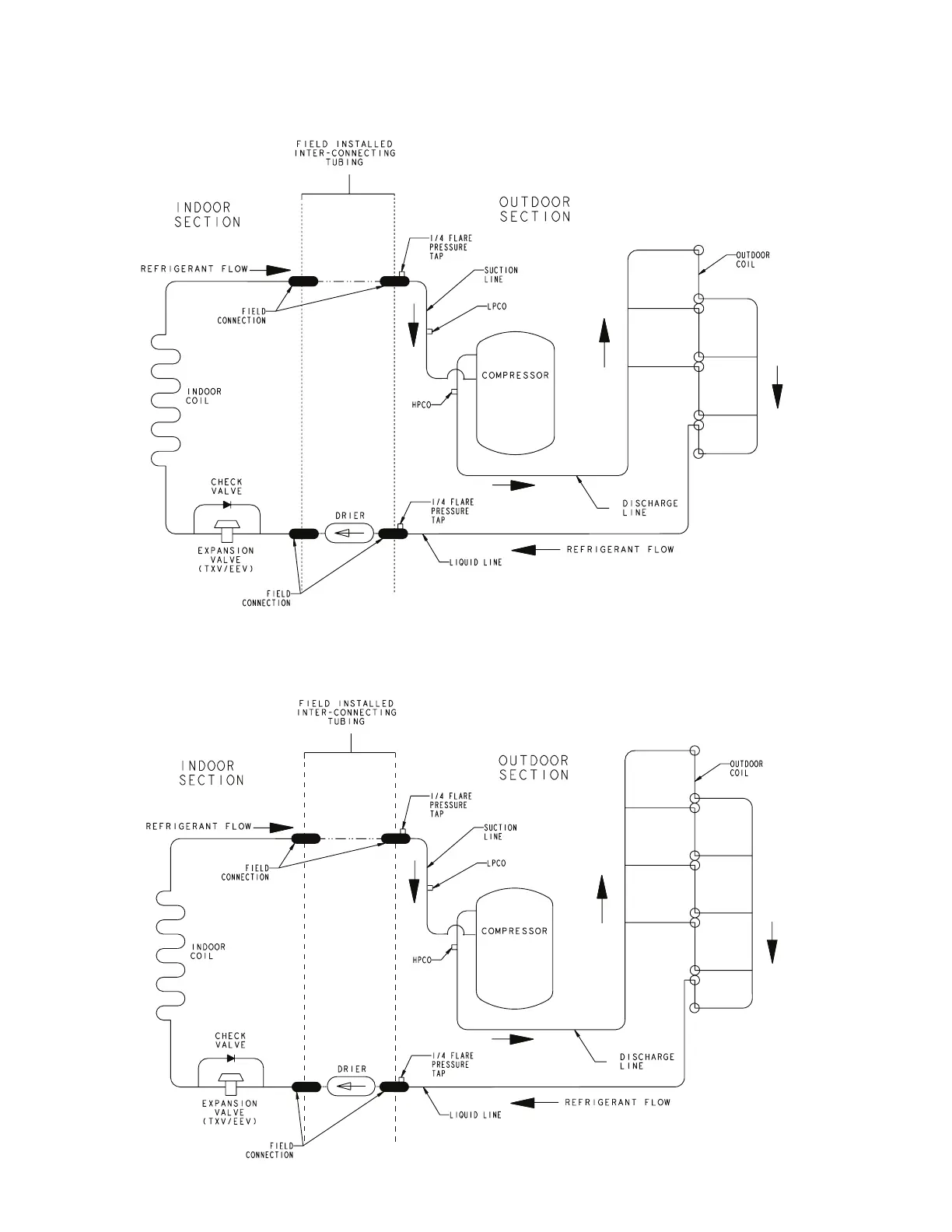
4 Ton Units
PRINTED FROM D158514P01
3.5 Ton Units
PRINTED FROM D157394P01

Related product manuals