EasyManua.ls Logo

Trane GGAA - Access Panel Removal

Trane GGAA
60 pages
Print Icon
To Next Page IconTo Next Page
To Next Page IconTo Next Page
To Previous Page IconTo Previous Page
To Previous Page IconTo Previous Page
Loading...
14
MUA-SVX005B-EN
WWAARRNNIINNGG
HHeeaavvyy OObbjjeecctt!!
FFaaiilluurree ttoo ffoollllooww tthheessee iinnssttrruuccttiioonnss ccoouulldd rreessuulltt iinn ddeeaatthh,, sseerriioouuss iinnjjuurryy,, aanndd pprrooppeerrttyy
ddaammaaggee..
MMaakkee cceerrttaaiinn tthhaatt tthhee lliiffttiinngg mmeetthhooddss uusseedd ttoo lliifftt tthhee dduucctt ffuurrnnaaccee aarree ccaappaabbllee ooff
ssuuppppoorrttiinngg tthhee wweeiigghhtt ooff tthhee hheeaatteerr dduurriinngg iinnssttaallllaattiioonn.. EEnnssuurree tthhaatt aallll hhaarrddwwaarree uusseedd iinn
tthhee ssuussppeennssiioonn ooff eeaacchh dduucctt ffuurrnnaaccee iiss pprrooppeerrllyy rraatteedd ffoorr tthhee jjoobb.. MMaakkee cceerrttaaiinn tthhaatt tthhee
ssttrruuccttuurree ttoo wwhhiicchh tthhee dduucctt ffuurrnnaaccee iiss ttoo bbee mmoouunntteedd iiss ccaappaabbllee ooff ssaaffeellyy ssuuppppoorrttiinngg iittss
wweeiigghhtt.. UUnnddeerr nnoo cciirrccuummssttaanncceess mmuusstt tthhee ggaass lliinneess,, vveennttiinngg ssyysstteemm,, oorr tthhee eelleeccttrriiccaall
ccoonndduuiitt bbee uusseedd ttoo ssuuppppoorrtt tthhee dduucctt ffuurrnnaaccee.. DDoo nnoott aallllooww oobbjjeeccttss ((ii..ee.. llaaddddeerr)) oorr ppeeooppllee
ttoo lleeaann aaggaaiinnsstt tthhee ggaass lliinneess,, vveennttiinngg ssyysstteemm,, oorr eelleeccttrriiccaall ccoonndduuiitt ffoorr ssuuppppoorrtt..
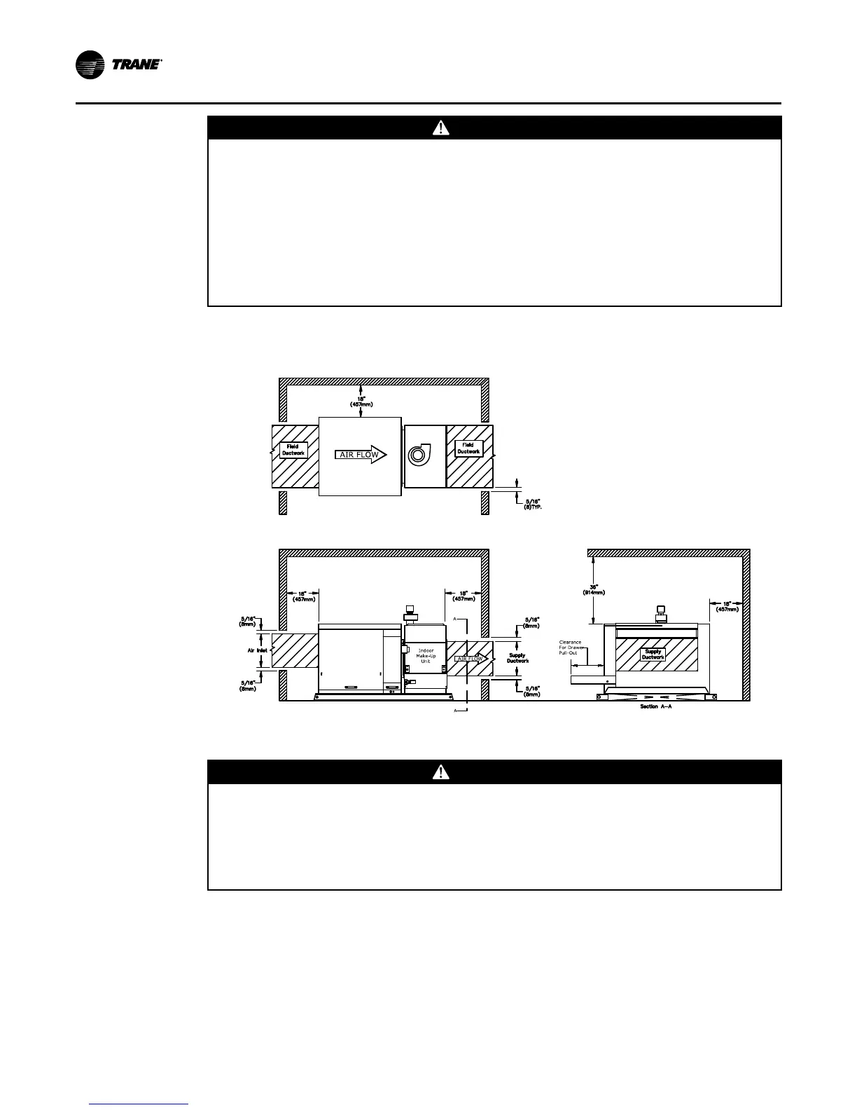
NNoottee:: Recommended ceiling clearance 36" (914mm) is to the top of the furnace venting collar
assembly.
Figure 5. Manufacturer’s Recommended Service Clearances
Access Panel Removal
WWAARRNNIINNGG
HHaazzaarrddoouuss VVoollttaaggee aanndd GGaass!!
FFaaiilluurree ttoo ttuurrnn ooffff ggaass oorr ddiissccoonnnneecctt ppoowweerr bbeeffoorree sseerrvviicciinngg ccoouulldd rreessuulltt iinn aann eexxpplloossiioonn
oorr eelleeccttrrooccuuttiioonn wwhhiicchh ccoouulldd rreessuulltt iinn ddeeaatthh oorr sseerriioouuss iinnjjuurryy..
TTuurrnn ooffff tthhee ggaass ssuuppppllyy aanndd ddiissccoonnnneecctt aallll eelleeccttrriicc ppoowweerr,, iinncclluuddiinngg rreemmoottee ddiissccoonnnneeccttss,,
bbeeffoorree sseerrvviicciinngg tthhee uunniitt.. FFoollllooww pprrooppeerr lloocckkoouutt//ttaaggoouutt pprroocceedduurreess ttoo eennssuurree tthhee ppoowweerr
ccaann nnoott bbee iinnaaddvveerrtteennttllyy eenneerrggiizzeedd..
The air handler section(s) of this unit are equipped with hinged access doors. The hinged doors
include dual, quick opening tool-less latches and full perimeter gasketing to assure a water
resistant seal. Door stops are included to guard against closure while open.
The furnace section service panel is easily accessible - simply remove the mounting screws on
the lower jacket panel to disengage and remove the panel; repeat procedure for installing back in
place. SSeeee tthhee mmaaiinntteennaannccee sseeccttiioonn aanndd tthhee dduucctt ffuurrnnaaccee mmaannuuaall ffoorr mmoorree iinnffoorrmmaattiioonn
rreeggaarrddiinngg bbuurrnneerr ddrraawweerr rreemmoovvaall//aacccceessssiibbiilliittyy..
IInnssttaallllaattiioonn

Table of Contents