EasyManua.ls Logo

Trane GGAA - Unit Type GG, Indoor Arrangements K, Capacities 10-80

Trane GGAA
60 pages
Print Icon
To Next Page IconTo Next Page
To Next Page IconTo Next Page
To Previous Page IconTo Previous Page
To Previous Page IconTo Previous Page
Loading...
46
MUA-SVX005B-EN
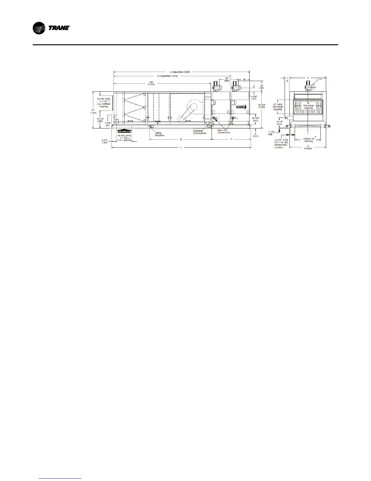
Unit Type GG, Indoor Arrangements K, Capacities 10–80
Capacities 50–80 shown
DDiimmeennssiioonnaall DDaattaa AArrrraannggeemmeennttss

Table of Contents