EasyManua.ls Logo

Trane S8X1C100M5PSCB - Page 18

Trane S8X1C100M5PSCB
80 pages
Print Icon
To Next Page IconTo Next Page
To Next Page IconTo Next Page
To Previous Page IconTo Previous Page
To Previous Page IconTo Previous Page
Loading...
18
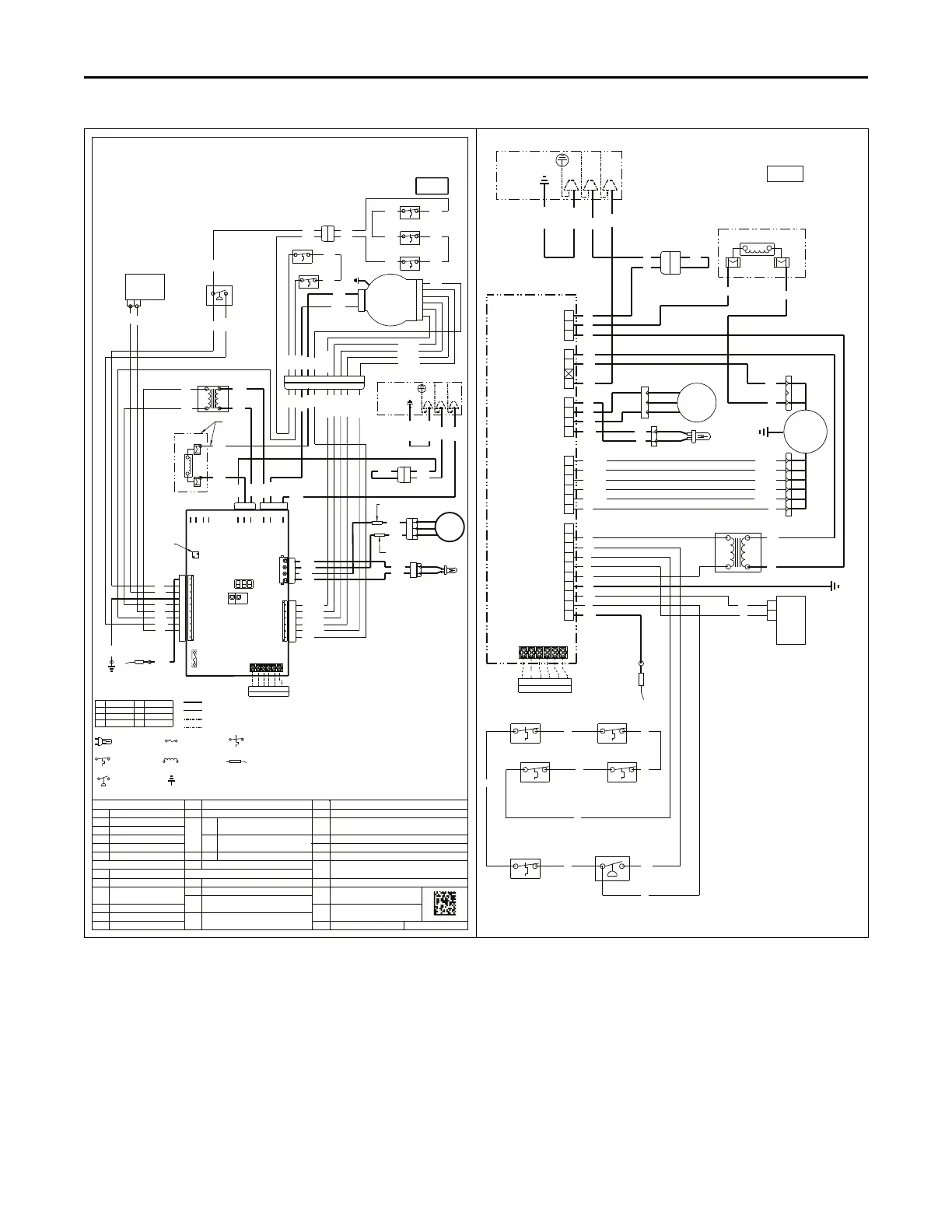
S8XB-SVX001-1B-EN
BK BLACK GR GREEN
WH WHITE BR BROWN
YL YELLOW RD RED
OR ORANGE BL BLUE
YL/44
YL/43
WH/40
WH/40
BK/WH/38
YL/46
YL/52
WH/17
WH/17
WH/21
WH/21
BK/22
BK/22
WH/20
BK/18
BL/2
BL/2
BL/5
BL/5
RD/6
RD/6
RD/9
RD/9
GR/8
WH/12
YL/50
YL/50
YL/49
YL/49
GR/YL/31
1
3
/LY/RG
YL/51
YL/51
YL/48
YL/48
BK/29
BK/29
OR/11
OR/11
YL/47
YL/47
BOX HARN
TO BURNER
BURNER BOX GND
NOTES:
1. IF ANY OF THE ORIGINAL WIRING AS SUPPLIED WITH THIS FURNACE MUST BE REPLACED, IT MUST BE WITH WIRE
HAVING A TEMPERATURE RATING OF AT LEAST 105°C. WIRES 12, 18, 20, 48, 49, 50, 51, 92, 93 MUST BE RATED TO 250°C.
2. COOLING / HEAT PUMP SYSTEMS - Y1 AND/OR Y2 MUST CONNECT FROM THE THERMOSTAT TO THE IFC LOW
VOLTAGE TERMINALS FOR PROPER AIRFLOW. SEE IOM FOR FIELD WIRING.
3. THE INDOOR BLOWER MOTOR AIRFLOW TABLES ARE LOCATED IN THE IOM.
TO CHANGE AIRFLOW USE THE MENU/OPTIONS BUTTONS.
4. LINE CHOKE AND WIRE BK/28 ONLY USED ON MODELS WITH 1 HP MOTORS.
5. FLAME SENSE TEST PADS: 1 VDC = 1 MICROAMP. FLAME CURRENT CAN VARY
DEPENDING ON THE VOM THAT IS USED AND THE VOLTAGE SUPPLIED TO
THE FURNACE. THE ACCEPTABLE RANGE IS 0.75-3 MICROAMPS.
S8X1
SEE NOTE 2
ELECTRICAL RATING
INPUT: 24VAC, 60 HZ.
TNS SEC. CURRENT: 450MA.
+ MV LOAD
MV OUTPUT: 1.5A @ 24 VAC
IND OUTPUT: 2.2 FLA, 3.5 LRA
@120 VAC
IGN OUTPUT: 2.0 A @ 120 VAC
CIRC. BLOWER OUTPUT:
14.5 FLA, 25 LRA @ 120 VAC
HUMIDIFIER & AIR CLEANER
(DRY CONTACTS)
MAX. LOAD: 1.0A @ 120VAC
24 VAC OR 120 VAC MAY BE
USED
FUSE: 5A
INTEGRATED FURNACE CONTROL
LINE
24 V
LINE
24 V
FIELD
WIRING
FACTORY
WIRING
RAF REVERSE
AIR FLOW
PS PRESSURE
SWITCH
FRS FLAME ROLLOUT
SWITCH
FP FLAME PROBE
IGN HOT SURFACE
IGNITER
** INTERNAL THERMAL PROTECTION
FUSE
GROUND
SEE NOTE 6
PANEL LOOP
H LINE
N NEUTRAL
GND GROUND
HLO HIGH LIMIT
OUTPUT
HLI HIGH LIMIT
INPUT
PS PRESSURE SWITCH
INPUT
IND INDUCER
IFC INTEGRATED
FURNACE
CONTROL
RAF REVERSE
AIR FLOW
TH 24VAC (HOT)
TR 24VAC (COMMON)
MVC MAIN VALVE
COMMON
MVC MAIN VALVE
TNS TRANSFORMER
ILI INDUCER LIMIT
INPUT
IGN IGNITER
FP FLAME PROBE
YL/45
YL/45
WH/15
WH/15
WH/16
WH/16
YL/3
YL/3
BK/39
BK/39
YL/WH/36
BL/WH/37
BK/14
BK/14
BK/13
BK/13
BK/WH/26
BK/WH/26
BL/WH/25
BL/WH/25
YL/WH/24
YL/WH/24
RD/WH/23
RD/WH/23
RD/WH/35
BK/28
BK/28
BL/57
BL/57
OR/WH/56
OR/WH/56
OR/WH/55
BL/42
BL/42
BK/30
BK/27
SEE NOTE 4
LC LINE CHOKE
YL/46
YL/52
TIMINGS
PREPURGE: 0 SEC.
INTERPURGE: 60 SEC.
POST PURGE: 5 SEC.
IGN WARMUP: 20 SEC.
IAP: 3; TFI: 5 SEC.
RETRIES: 2 RECYCLES: 10
HEAT ON DELAY: UP TO 30 SEC.
COOL ON DELAY: 0 SEC.
AUTO RESTART: 60 MIN.
AUTO RESTART PURGE: 60 SEC.
1 Stage Inducer with CTM Blower Motor
D345844P01 REV F
HOd
Heat Off Delay (sec)
IdL
Idle
COF
Blower Tap for Continuous Fan
Ht
Heating
COP
Blower Tap for 1st
tP
Blower Tap Number
Stage Compressor Mode
COF
Continuous Fan Blower Tap for 2nd
E05
CP1
Cooling/Heat Pump Mode
Stage Compressor Mode
dft
Defrost Mode
HtP
Blower Tap for Heating Mode
nUr
Orn Orientation
Err
Active Alarm Menu
L6F
Last 6 Faults (To Clear,
Flame current is low, but still
Hold Option Button 5 sec)
strong enough to allow operation
Cr
Code Release Number
(1) Gas valve not energized
COd
Cooling Off Delay (sec) (2) Gas valve relay stuck closed
OdU
Outdoor Unit
Open fuse
Open Pressure Switch
(1) Igniter relay fails
Status Codes
Menu Options
Open Thermal Limit, Rollout Switch,
or Reverse Airflow Switch
Shorted Pressure Switch
Flame detected, should not be present
Voltage reversed polarity
Bad Grounding
Error Codes
Run Test Mode
Recycles exceeded (loss of
established flame or PS open x10)
Gas Valve not energized when it
should be exceeded after 10 times
Loss of IRQ or internal failures
Retry exceeded (Failed to est flame)
(2) Igniter open
Gas valve is energized whenit should be off
BK/
9
2
WH/93
BUTT SPLICE-WITH HEAT SHRINK
BUTT SPLICE-WITH HEAT SHRINK
X
X
24v
120v
TNS
VENT
MOTOR
(INDUCER)
**
GAS
VALVE
MV
C
RAF-1
IGN
PS
X
THERMAL_LIMIT
FLAME_ROLLOUT2
FLAME_ROLLOUT1
FLAME_PROBE
FP
HLI
MV
GND
TH
MVC
HLO
PS
TR
ILI (NOT USED)
IGN-N
IND-N
IND-H
IGN-H
IFC
EAC
HUM
LINE
NEUTRAL
W
R G
B/C Y/Y1
THERMOSTAT
FP
MENU OPTION
TAP1
TAP2
TAP3
TAP4
TAP5
GND
LINE-N
CIRC-N
(blocked)
TNS-N
TNS-H
CIRC-H
LINE-H
3 2 1 4 3 12
Y2
24 / 120 VAC
MAY BE USED
1
2
2
1
1
2
JUNCTION BOX
120v 60 Hz. 1 PH
POWER SUPPLY PER LOCAL CODE
H N
GND
X
RAF-2
10
9
8
7
6
5
4
3
2
1
1
2
3
4
121110987654321
1 2 3 4 5 6 7 8 9 10 11 12
6
5
4
3
2
1
123
1234
1
2
2
1
1
2
3
LINE CHOKE
BLOWER
MOTOR
N
G
L
COM
1
2
3
4
5
6
1
2
3
S1
1
2
S2
1
2
BLOWER
HOUSING
GND
C1.
C2.
H1.
E2.1
E2.2
E2.3
E3.1
E3.2
E04
E6.1
E01
E6.2
E6.3
E7.1
E08
E12
E11
SEE NOTE 1
SEE NOTE 1
BL
BL
RD
RD
YL
YL
YL
BK
WH
GR/YL
GR/YL
YL
GR
YL
YL
YL
BK
BK
WH
WH
BK
BK
BK
BK
BL
RD
BK
BK
WH
WH
YL
YL
OR
OR
BURNER
BOX GND
BK
PANEL LOOP
YL
WH
WH WH
RD/WHRD/WH
BL/WHBL/WH
BK/WHBK/WH
BK
BK
BLBL
OR/WHOR/WH
YL/WHYL/WH
BK
BK
WH
WH
DEFAULT BLOWER MOTOR TAP SELECTIONS
COF (CONSTANT FAN): TAP 1
CP1 (FIRST STAGE COOLING): TAP 3
CP2 (SECOND STAGE COOLING): TAP 7
HT (GAS HEAT): TAP 5
VENT
MOTOR
(INDUCER)
**
1
2
3
IGN
ILI
TR
PS
HLO
MVC
TH
GND
MV
HLI
FP
W
R
G
B/C
Y/Y1
THERMOSTAT
LINE-H
CIRC-H
TNS-H
TNS-N
CIRC-N
LINE-N
IGN-H
IND-H
IND-N
IGN-N
1
2
3
4
5
6
7
8
9
10
1
2
3
4
4
3
1
3
2
1
IFC
TAP1
TAP2
TAP3
TAP4
TAP5
GND
1
2
3
4
5
6
Y2
JUNCTION BOX
120v 60 Hz. 1 PH
POWER SUPPLY PER LOCAL CODE
H N
GND
24v
120v
TNS
GAS
VALVE
MV
C
FLAME_ROLLOUT1
FLAME_ROLLOUT2
RAF-1
THERMAL_LIMIT
BLOWER
MOTOR
N
4
3
2
1
G
L
5
COM
PS
FLAME PROBE
1
2
RAF-2
2
1
LINE CHOKE
S8X1
WWiirriinngg DDiiaaggrraammss

Other manuals for Trane S8X1C100M5PSCB

Related product manuals