EasyManua.ls Logo

Trane TUD060 - TUD-C Outline Drawing

Trane TUD060
16 pages
Print Icon
To Next Page IconTo Next Page
To Next Page IconTo Next Page
To Previous Page IconTo Previous Page
To Previous Page IconTo Previous Page
Loading...
14 22-1640-06-0702 (EN)
From Dwg. 21C341699 Rev. 1
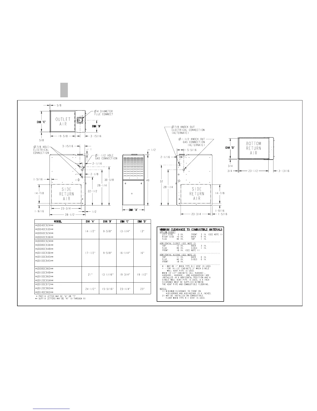
TUD-C Outline Drawing
(All dimensions are in inches)

Related product manuals