EasyManua.ls Logo

Trumeter 7921 - Page 39

Trumeter 7921
40 pages
Print Icon
To Next Page IconTo Next Page
To Next Page IconTo Next Page
To Previous Page IconTo Previous Page
To Previous Page IconTo Previous Page
Loading...
39
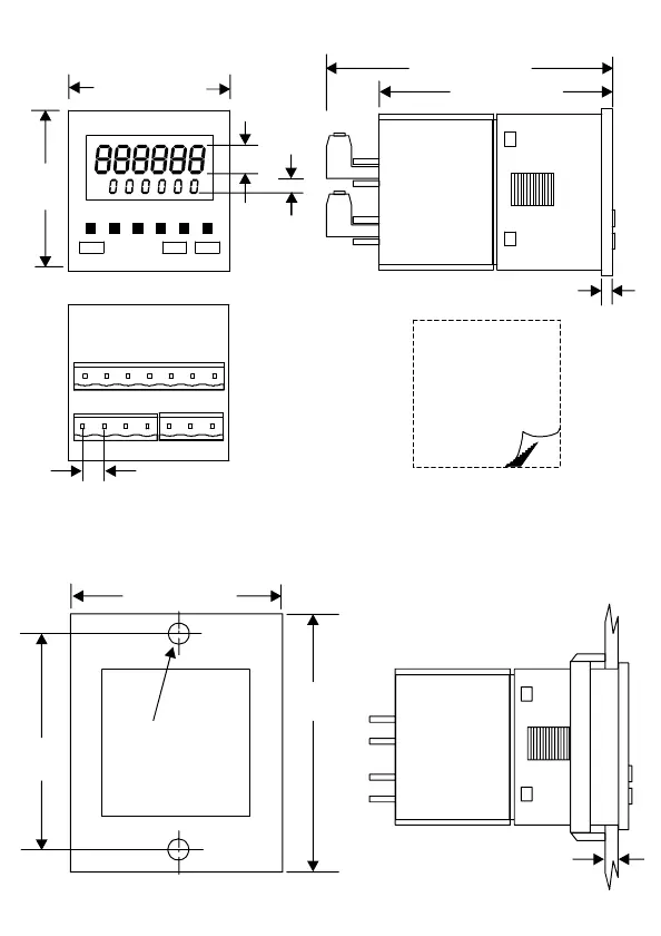
Dimensions, Abmessungen, Dimensiones, Dimensioni
Screw-fixed bezel, Frontrahmen mit
Schraubenbefestigung, Cadre à vis,
Marco fijado con tornillos, Cornice a vite
48mm
(1.89")
48mm (1.89")
93mm (3.66")
76mm (2.99")
3mm (0.12")
5mm (0.2")
1234567
8
9
10
11
12 13 14
45 x 45mm
+0.6mm -0mm
(1.77" x 1.77"
+0.024" -0")
8.5mm
(0.335")
4.5mm
(0.177")
Ø 4.3mm (0.17")
60mm (2.36")
63mm
(2.48")
75mm
(2.95")
=<12mm
(0.48")
Fixing Clip, Befestigungsklammer,
Clip de fixation, Clip fijación,
Fermaglio di fissaggio

Related product manuals