EasyManua.ls Logo

Ultraflex SUPERMASTER 24 Vdc - Page 14

Ultraflex SUPERMASTER 24 Vdc
24 pages
Print Icon
To Next Page IconTo Next Page
To Next Page IconTo Next Page
To Previous Page IconTo Previous Page
To Previous Page IconTo Previous Page
Loading...
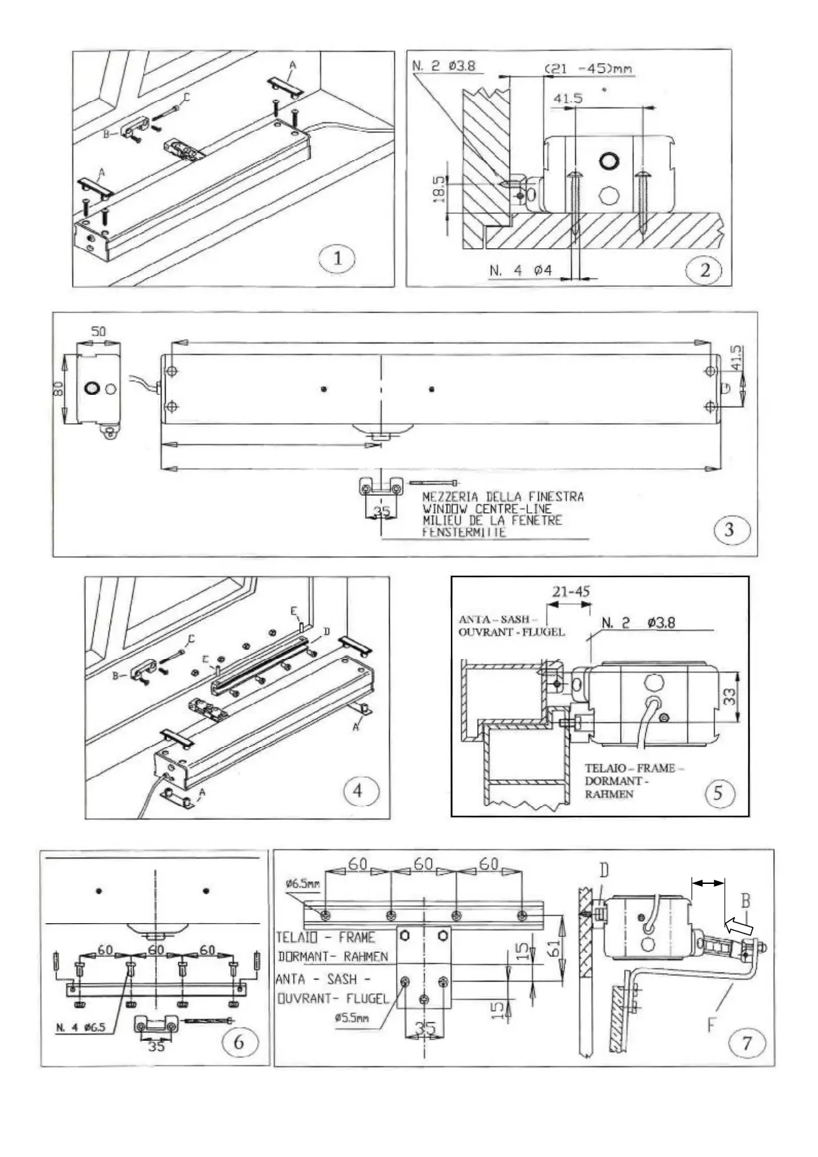
Doc. 81779F - Rev. 02/05/07 6-8 Dis. 17191/c
21-45
58
4
(
4
50
st
r
o
k
e)
660
(600
st
r
o
k
e)
774
(800
st
r
o
k
DAs'ON>A'Q6L8KHW'€'D|>'ODAA'Q6L8KHW'€'•ss'O|AA'Q6L8KHW'
290

Related product manuals