EasyManua.ls Logo

Unical DUA plus BTN 28 - Page 21

Unical DUA plus BTN 28
32 pages
Print Icon
To Next Page IconTo Next Page
To Next Page IconTo Next Page
To Previous Page IconTo Previous Page
To Previous Page IconTo Previous Page
Loading...
Installation info
21
fig. 21
AZZURRO
AZZURRO (N)
GIA/VERDE
GIA/VERDE
CAVO PVC 3x0,75 Ø
MARRON E
MARRON E (L)
A
B
C
D
Y2
GND 1
E
F
B
C
D
EF
®
plus
DUA
MAX
MAX
80° 60°
65°
70° 55°
60° 50°
50° 45°
40° 40°
30° 35°
20°
-20 °C
10 ° C
0 °C
-10 °C
MIN - MAX
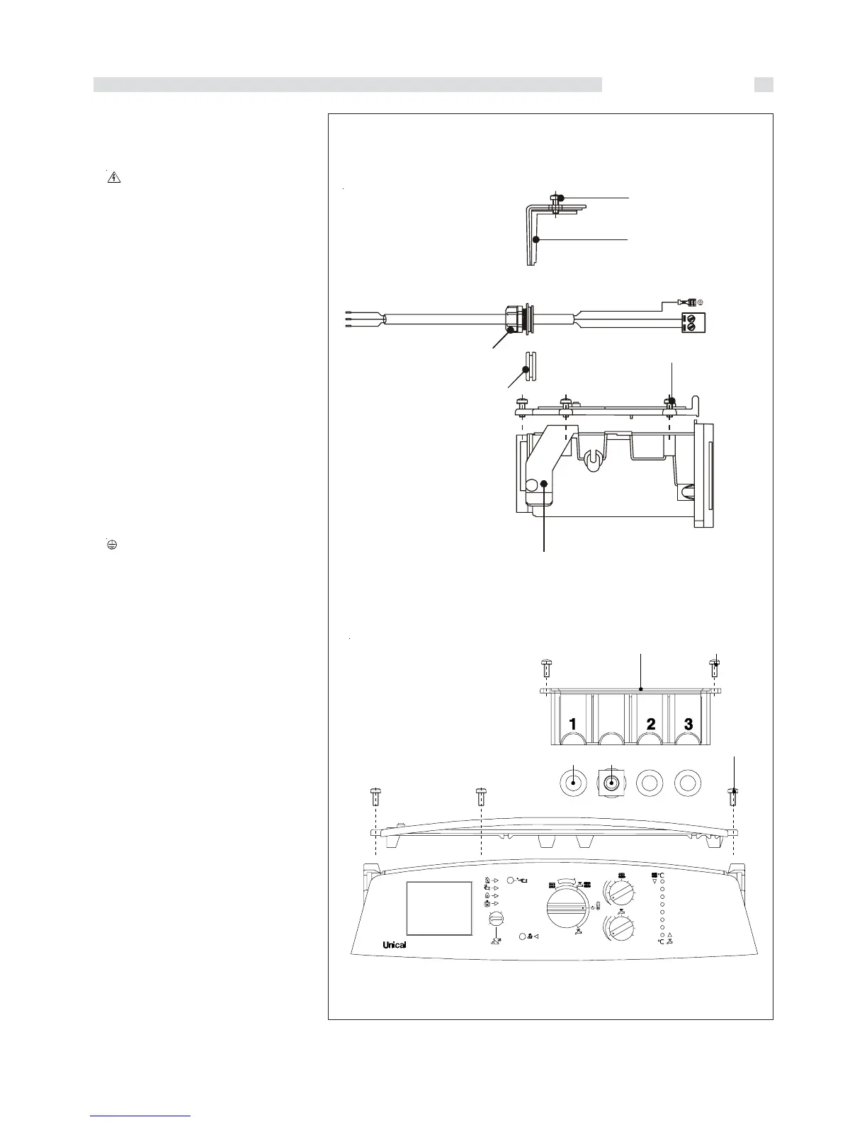
GENERAL INFORMATION ON THE
ELECTRICAL CONNECTIONS
Access to the supply terminal block
- WARNING! Disconnect power supply
- Remove the front casing.
- Widen the two plastic flaps (A); pull front-
wards the panel board and rotate it
downwards.
- To get access directly to the connection
zone, unscrew the two screws (B) and
remove the cover (C); if this isn't enough,
unscrew the five screws (D) to get
access completely inside the panel board
(act carefully).
Replacement of the supply cable
When replacing the supply cord, the UNICAL
original one, Part. code 00610308, must be
used.
- Get access to the supply terminal block
Y2 (see previous paragraph).
- Insert the new power supply cord through
the extractable cable gland E
- Pul out the terminal block Y2 and make the
connections respecting the position and the
colours. The female faston of the earthing
wire must be introduced on the tab GND 1.
L1= phase = brown - terminal Y2 - 1
N =neutral = bleu - terminal Y2 - 2
= earth = yellow/green - tab GND1
Room thermostat connection
(ROOM STAT)
- Get access to the terminal block Y1
- Remove the link between terminals 4 - 5.
- Insert the room thermostat cable TA
through the extractable gland, supplied
with the boiler, and connect it to the
terminals 4 and 5.
- WARNING! If an ON/OFF room stat is
used, the jumper JP1 of the modulating
PCB must be positioned between pins 2
and 3 (see fig. 23).
External sensor connectionEXT SENS)
- Get access to the terminal block Y1
- Insert the external sensor cable through
the extractable cable gland, supplied with
the boiler, and connect it to the terminals 2
and 3 of the block Y1; if the cable is of
shielded type, then connect the shield to
the terminal 1 of the block Y1.
For the connection of the ROOM STAT and
the EXT SENSOR, replace the plastic plugs F
of the panel board with the cable glands
supplied with the boiler.
ACCESS TO THE MODULATING PCB
Front view
Panel board side view

Related product manuals