EasyManua.ls Logo

USSC 1537M - Locating the Furnace; Location and Proximity; Required Clearances; Floor Surface Requirement

USSC 1537M
28 pages
Print Icon
To Next Page IconTo Next Page
To Next Page IconTo Next Page
To Previous Page IconTo Previous Page
To Previous Page IconTo Previous Page
Loading...
7
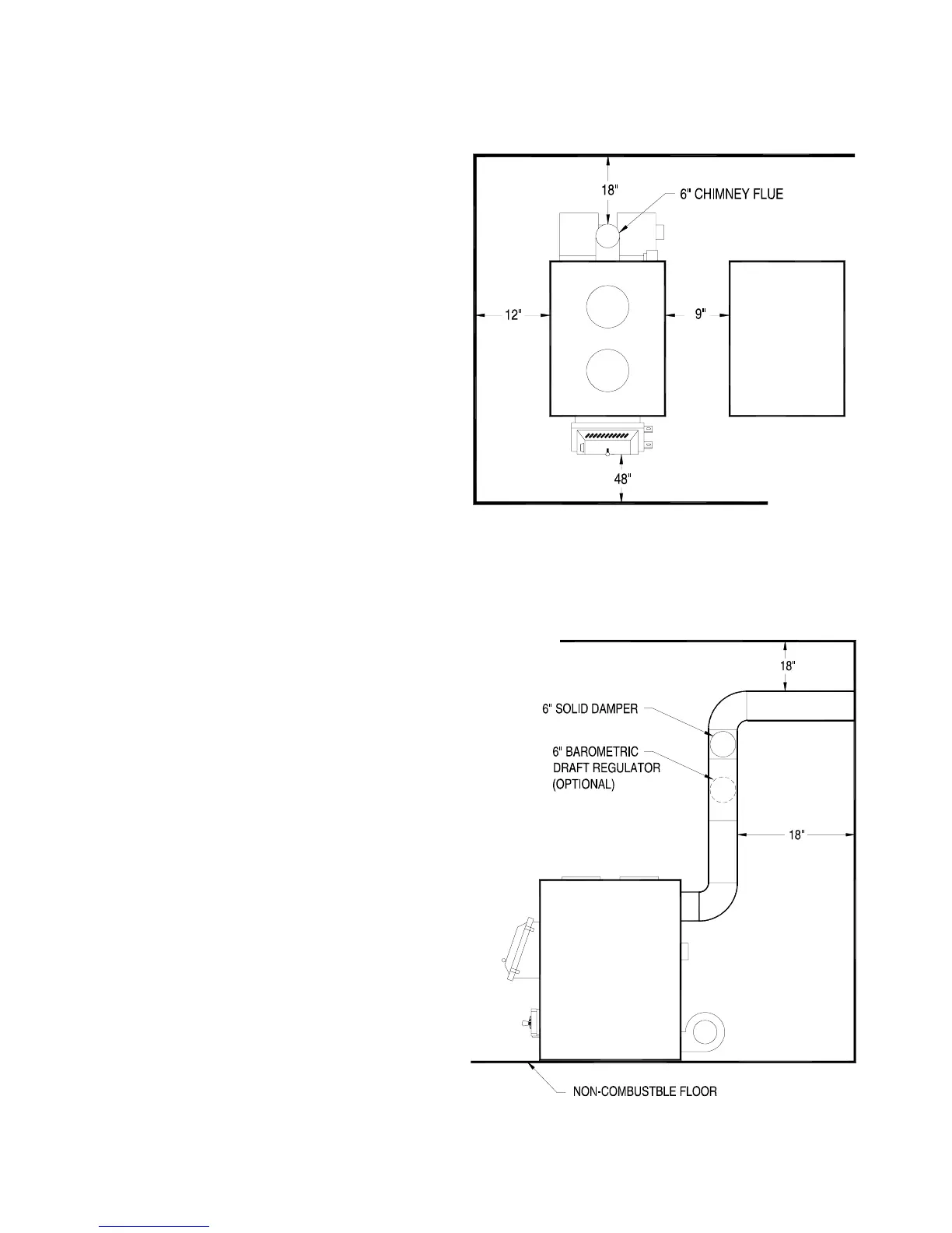
LOCATING THE FURNACE
1. The furnace should be located in the
same room as the central system
and as close as possible, but not
closer than 9". There should be no
wall between the furnace and the
warm air outlet duct that is connected
directly to the warm air outlet plenum
of the central furnace. (See Fig. 2)
The unit will require installation with
the following clearances:
Unit to sidewall...............12"(305mm)
Unit to backwall............30"(760mm)
Chimney connector pipe to sidewall
.....................................21"(530mm)
Chimney connector pipe to backwall
.....................................18"(460mm)
Hot air ducts to combustibles
.......................................6"(150mm)
(Refer to Fig. 2 & 3)
Place the furnace on a noncombus-
tible floor.
Check figures 2 and 3. Be sure you
have the clearances shown from the
furnace and the connector pipe to
combustible surfaces. If you have a
solid brick or stone wall behind your
furnace, you can place the furnace
as close as you wish to the wall. If the
wall is only faced with brick or stone,
treat it as a combustible wall.
2.
3.
4.
Figure 2
Figure 3

Related product manuals