EasyManua.ls Logo

V2 SPA ALFARISS - External Aerial; Plug In Receiver; ADI Interface

V2 SPA ALFARISS
Print Icon
To Next Page IconTo Next Page
To Next Page IconTo Next Page
To Previous Page IconTo Previous Page
To Previous Page IconTo Previous Page
Loading...
ENGLISH
45
4
.9 - EXTERNAL AERIAL
We suggest to use the external aerial (model: ANS433) in
order to guarantee the maximal range.
Connect the antenna hot pole to terminal A2 (ANT) of the
control unit and the braiding to terminal A1 (ANT-).
NOTE: using the LUMOS-24V flashing light with built-in antenna,
connect the terminal 3 of the flashing light to the terminal
A2 (ANT) of the control unit and the terminal 4 of the flashing
light to the terminal A1 (ANT-) of the control unit PD13
4.10 - PLUG IN RECEIVER
PD13 control unit is suitable for plugging in a MR1 receiver
having a high-sensitivity super-heterodyne architecture.
m WARNING: it is necessary to turn off the control unit
power before doing the operations mentioned here below.
Pay attention to the way you connect the removable
modules.
MR1 module receiver is provided with 4 channels and each of
them is suitable for a command of PD13 control unit:
CHANNEL 1
쩚쩛
START
CHANNEL 2
쩚쩛
PEDESTRIAN START
CHANNEL 3
쩚쩛
STOP
CHANNEL 4
쩚쩛
COURTESY LIGHT
NOTE: Before programming 4 channels and function
logics read carefully the instructions of MR1.
J9J8J7J6J5J4J3J2J1
B
1 B2A1 A2
E5E3 E4E2E1
ANT
4
.11 - ADI INTERFACE
The ADI (Additional Devices Interface) interface of the control
unit PD13 allows the connection to V2 optional modules.
Refer to V2 catalogue or to the technical sheets to see which
optional modules with ADI interface are available for this control
unit.
m WARNING: Please read the instructions of each single
module to install the optional modules.
For some devices, it is possible to configure the mode for
i
nterfacing with the control unit; in addition, it is necessary to
enable the interface so that the control unit can process the
signals arriving from the ADI device.
Please refer to the i.ADi programming menu to enable the ADI
interface and access the device configuration menu.
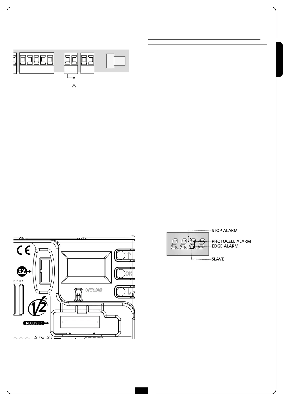
ADI devices use the display of the control unit to issue alarms or
display the configuration of the control unit.
NOTE:
If the ADI interface is not enabled (no device
connected), the segments remain turned off.
The device connected to the Adi interface is able to signal to the
control unit three alarm signals, which are displayed on the
control unit display as follows:
PHOTOCELL ALARMS
-
the upper segment comes on
:
the gate stops moving, when the alarm stops opening restarts.
EDGE ALARM
-
the lower segment comes on
:
inverts motion of the gate for 3 seconds.
STOP ALARM
-
both segments start flashing
:
the gate stops and cannot restart until the alarm stops.
SLAVE - segment steadily lit: it is used by the optional module
SYNCRO to indicate that the control unit is configured as
SLAVE.

Table of Contents