EasyManua.ls Logo

V2 SPA ALFARISS - Montaggio Della Cremagliera; Fissaggio del Motore; Installazione Dei Finecorsa Magnetici

V2 SPA ALFARISS
Print Icon
To Next Page IconTo Next Page
To Next Page IconTo Next Page
To Previous Page IconTo Previous Page
To Previous Page IconTo Previous Page
Loading...
ITALIANO
6
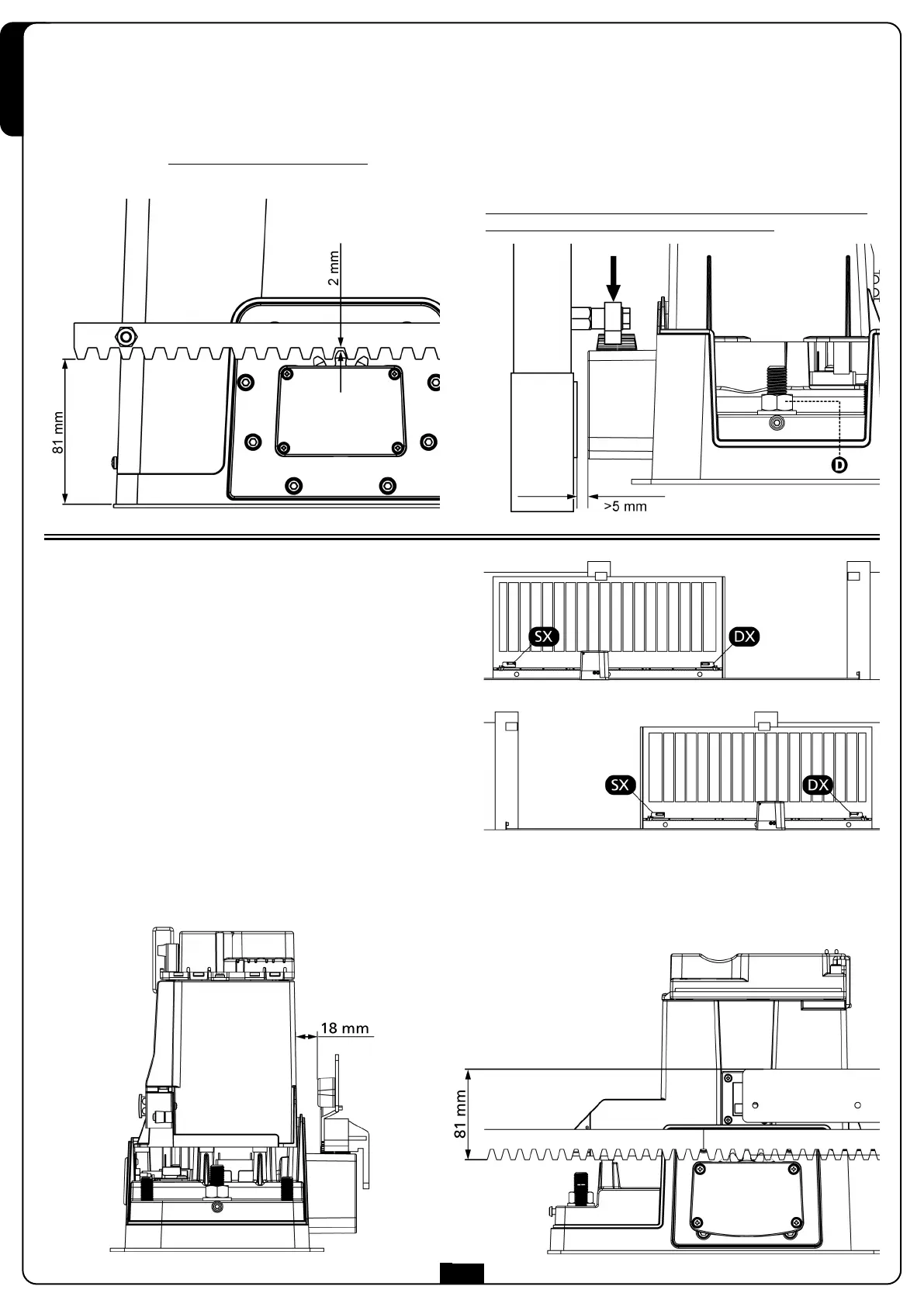
3.3 - FISSAGGIO DEL MOTORE
Verificare i seguenti punti:
1. Il motore deve essere in bolla e parallelo al cancello
2. La distanza tra pignone e cremagliera deve essere di
1 o 2 mm. Eventualmente regolare i 4 grani.
3. La cremagliera deve essere allineata al pignone del motore
4. La distanza minima tra l’ingombro massimo del cancello e il
paramano del motore deve essere di almeno 5 mm
Verificate le condizioni sopra descritte procedere con il fissaggio
dei 2 dadi D che ancorano il motore alla piastra.
3.2 - MONTAGGIO DELLA CREMAGLIERA
Sbloccare il motore e posizionare il cancello in posizione
totalmente aperto. Fissare tutti gli elementi della cremagliera al
cancello facendo attenzione di mantenerli alla stessa altezza
rispetto al pignone motore.
La cremagliera DEVE essere posizionata a 1 o 2 mm al di sopra
del pignone motore su tutta la lunghezza del cancello.
3.4 - INSTALLAZIONE DEI FINECORSA
MAGNETICI
Installare la staffa porta magneti in dotazione sulla cremagliera in
modo che nelle posizioni di massima apertura e di massima
chiusura il magnete rimanga posizionato in corrispondenza del
sensore magnetico posto dietro la calotta (il più possibile vicino
alla stessa).
I magneti in dotazione sono appositamente distinti da due colori:
MAGNETE BLU = FINECORSA DESTRO (DX)
MAGNETE ROSSO = FINECORSA SINISTRO (SX)
Il tipo di finecorsa (DESTRO/SINISTRO) dipende dalla posizione del
finecorsa rispetto al motore, indipendentemente dal verso di
apertura.
ATTENZIONE: verificato il corretto funzionamento del sistema si
consiglia di saldare le staffe finecorsa sulla cremagliera.

Table of Contents