EasyManua.ls Logo

Vacon FI9 - Page 26

Vacon FI9
102 pages
Print Icon
To Next Page IconTo Next Page
To Next Page IconTo Next Page
To Previous Page IconTo Previous Page
To Previous Page IconTo Previous Page
Loading...
26 • vacon installation
Tel: +358-201-2121 • Fax: +358-201-212 205
5
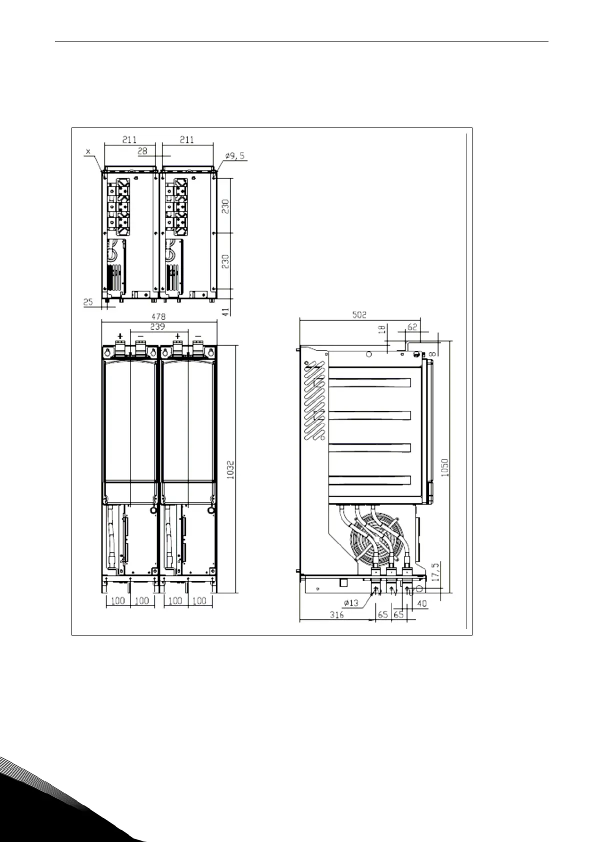
Figure 5-4. Vacon NXI dimensions, FI12 front view

Related product manuals