EasyManua.ls Logo

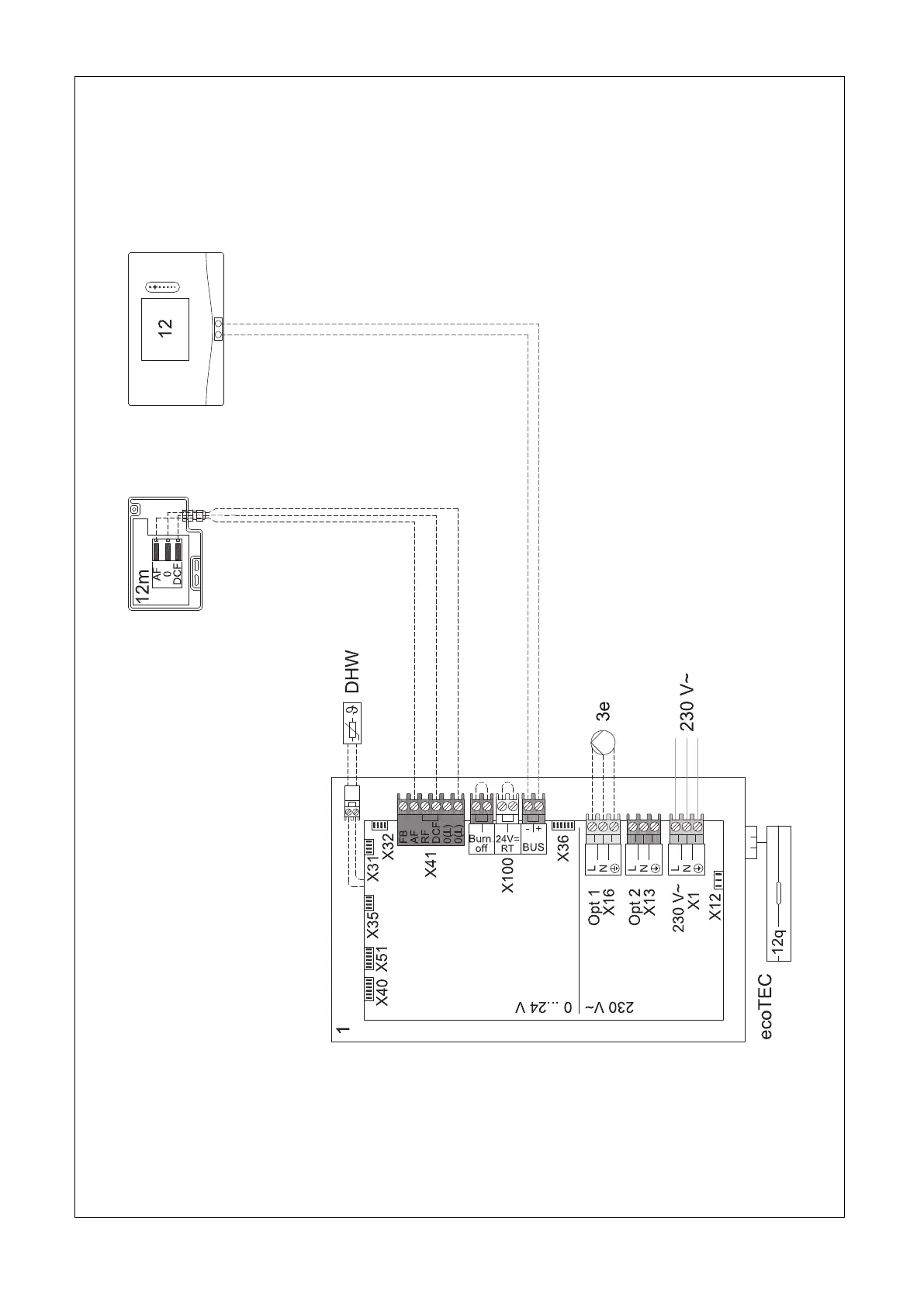
Vaillant VR 70 - 4.9.3.3 Wiring diagram 0020184677

Vaillant VR 70
64 pages
Print Icon
To Next Page IconTo Next Page
To Next Page IconTo Next Page
To Previous Page IconTo Previous Page
To Previous Page IconTo Previous Page
Loading...
0020288151_04 Operating and installation instructions 41
4.9.3.3 Wiring diagram 0020184677

Table of Contents

Other manuals for Vaillant VR 70

Related product manuals