EasyManua.ls Logo

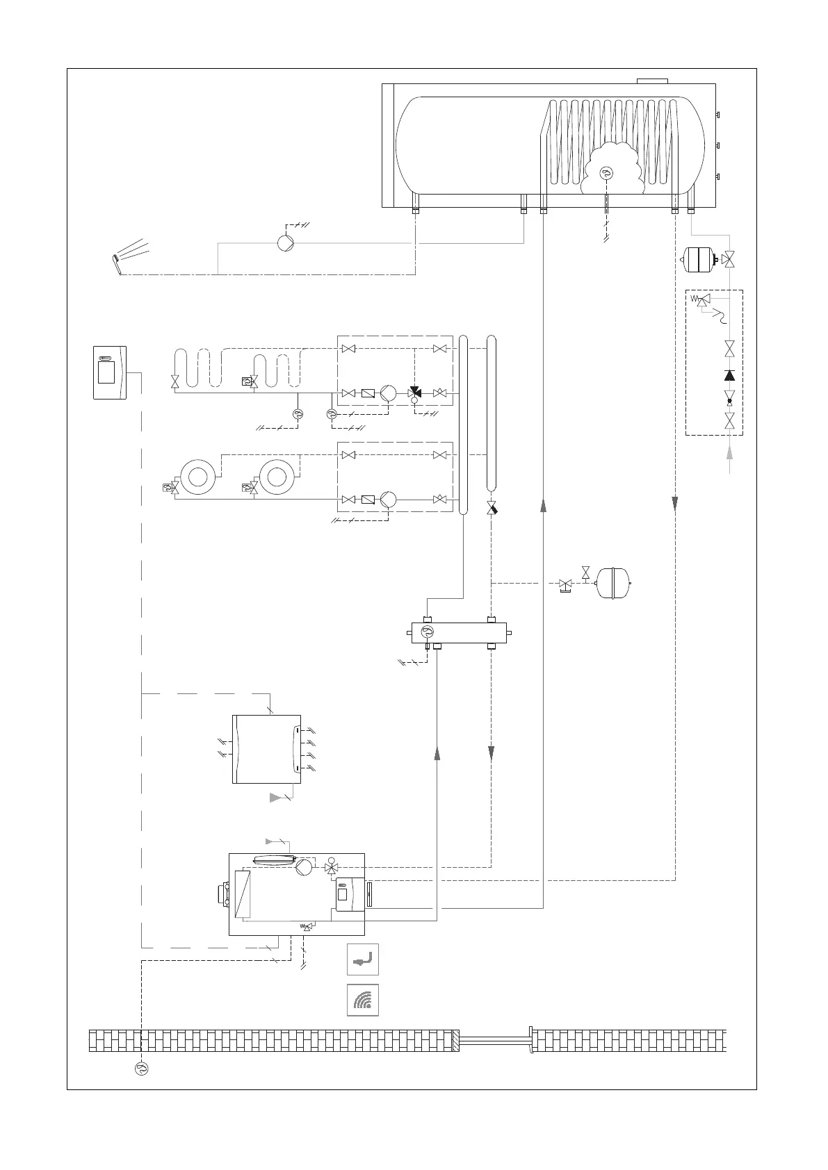
Vaillant VR 70 - 4.9.4.2 Basic system diagram 0020178440

Vaillant VR 70
64 pages
Print Icon
To Next Page IconTo Next Page
To Next Page IconTo Next Page
To Previous Page IconTo Previous Page
To Previous Page IconTo Previous Page
Loading...
0020288151_04 Operating and installation instructions 43
4.9.4.2 Basic system diagram 0020178440
5
2
DHW
8c
8f
BUS BUS BUS
10h
SysFlow (S5)
2
12d
1
9j
8e
9h
3f
10c
9a
9c
3
12d
R2M
7j
1
M
3f
10c
9a
FS2
12k
9c
2
4
3
3
9k
12d
2
1
R2M
7j
(S3)
2
2
12d
2
12d
10e
DHW
2
9a
12q
LAN
WLAN
BUS
BUSBUS
BUS
BUS
BUSBUS
BUSBUS
BUS
BUS
BUS
BUSBUS
BUS BUS BUS
12d
230 V~
3
3f1 (R1)
SysFlow (S5)
FS2 (S6)
9k2 (R5/6)
3f2/12k2 (R2)
3e (R3)
2
1
230 V~
3
2
M
3
3
3e
12d
12m
12

Table of Contents

Other manuals for Vaillant VR 70

Related product manuals