EasyManua.ls Logo

Vallox 75 - Electrical Connections (Remote Monitoring); Remote Monitoring Wiring Diagram

Vallox 75
14 pages
Print Icon
To Next Page IconTo Next Page
To Next Page IconTo Next Page
To Previous Page IconTo Previous Page
To Previous Page IconTo Previous Page
Loading...
VALLOX 75/95
11
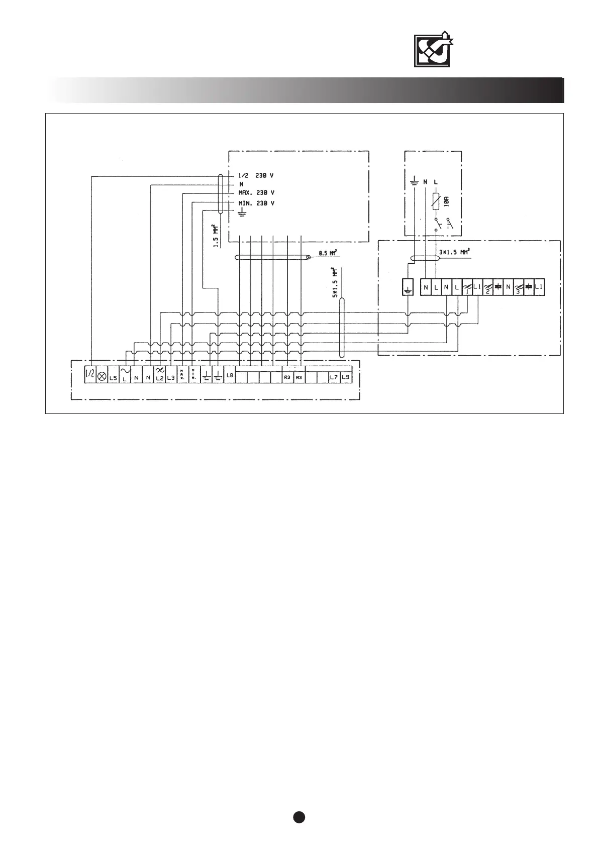
ELECTRICAL CONNECTIONS/REMOTE MONITORING
VALLOX 75/95, control through remote monitoring with control centre 1993 YK/2A
VALLOX 1993A YK / 2A
VALLOX 75/95
REMOTE MONITORING
CONTROL CENTRE
DISTRIBUTION
PANEL
OPERATING STATUS DATA
OPERATING STATUS DATA
L-2
FILTER GUARD
MAX MAX MIN MIN

Other manuals for Vallox 75

Related product manuals