EasyManua.ls Logo

Vallox 75 - Electrical Connections (Water Radiator - VKL); VKL Internal Electrical Wiring; VKL External Wiring (Cooker Hood); VKL External Wiring (Control Centre)

Vallox 75
14 pages
Print Icon
To Next Page IconTo Next Page
To Next Page IconTo Next Page
To Previous Page IconTo Previous Page
To Previous Page IconTo Previous Page
Loading...
Speed selector switch
(factory setting)
(In a forced control centre there is no
position "0" in the speed selection switch.)
Distribution
panel
On/Off-switch
VALLOX 75/95
10
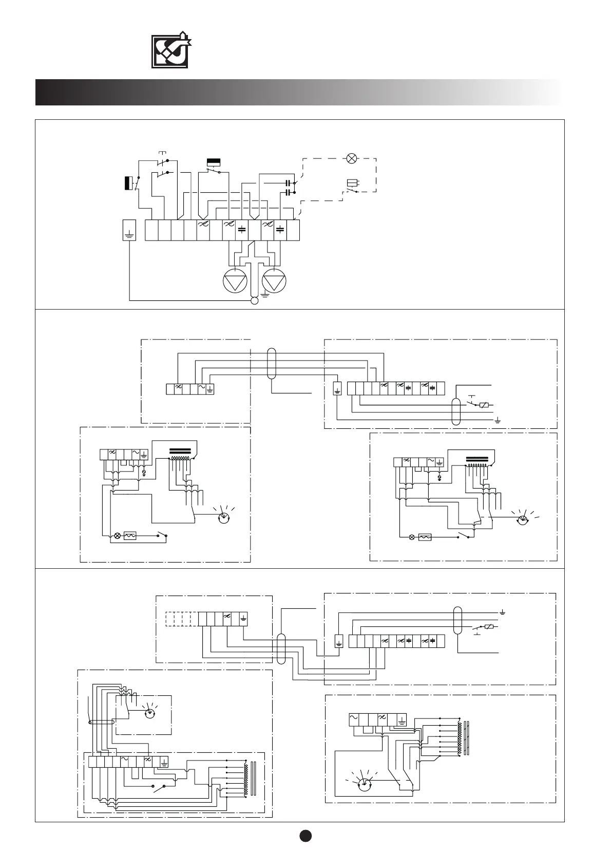
ELECTRICAL CONNECTIONS/WATER RADIATOR (VKL)
VALLOX 75/95 VKL, 3510, external electrical connection with cooker hood PTX 27982 or PTXP(A) 27982
VALLOX 75 / 95 VKL, model 3510, external electrical connection with control centre
VALLOX 75 / 95 VKL, model 3510, internal electrical connection
F1 Supply air fan
F2 Extract air fan
T1 Post-heating radiator regulating
thermostat 0...+25 °C (Limitation)
T2 Defrost thermostat +5 °C
K Capacitor
SS Safety switch
Wire colours:
m = black
r = brown
s = blue
T2
F1
F2
K
TK
m
s
s
s
s
s
m
m
m
m
m
L
N
N
1
L
T1
m
m
K
r
r
N
L
m
1
m
s
L
1
s
+
V
-
W
23
3 X 1.5 S
L
10 A
N
N
1
L
N
L
1
L
L
N
L
3
2
N
INTERNAL ELECTRICAL
CONNECTION OF THE
HOODS
N
L
VALLOX 95/75 VKL
HOOD
Distribution
panel
COOKER HOOD PTX 27982
230 V
160 V
120 V
70 V
L
L
2
N
4 X 1.5 S
90 V
135 V
180 V
1
2
3
L
1
2
3
PL 11
0
COOKER HOOD PTXP(A) 27892
L
3
230 V
160 V
120 V
70 V
L
N
90 V
135 V
180 V
1
2
3
PL 11
4
L
2
4
N
L
3
N
L
N
N
4 X 1.5 S
L
3 X 1.5 S
N
A
CONTROL CENTRE 1992A EK
N
1
2
3
1
L
L
N
L
NLL
L
3
3L
CONTROL CENTRE
N
N
L
2
13
2
1
10 A
VALLOX 95/75 VKL
4
120 V
90 V
70 V
230 V
135 V
160 V
N
L
3
L
N
N
L
CONTROL CENTRE 1992A
2
120 V
90 V
180 V
2
1
70 V
230 V
135 V
12
L
3
160 V
180 V
3
2
1
4
0
3
4
1
2
3
4
b
5*1.5
24
N
(Forced control centre has no switch A)

Other manuals for Vallox 75

Related product manuals