EasyManua.ls Logo

Vallox 75 - Electrical Connections (Electric Radiator); Internal Electrical Wiring; External Wiring (Cooker Hood); External Wiring (Control Centre)

Vallox 75
14 pages
Print Icon
To Next Page IconTo Next Page
To Next Page IconTo Next Page
To Previous Page IconTo Previous Page
To Previous Page IconTo Previous Page
Loading...
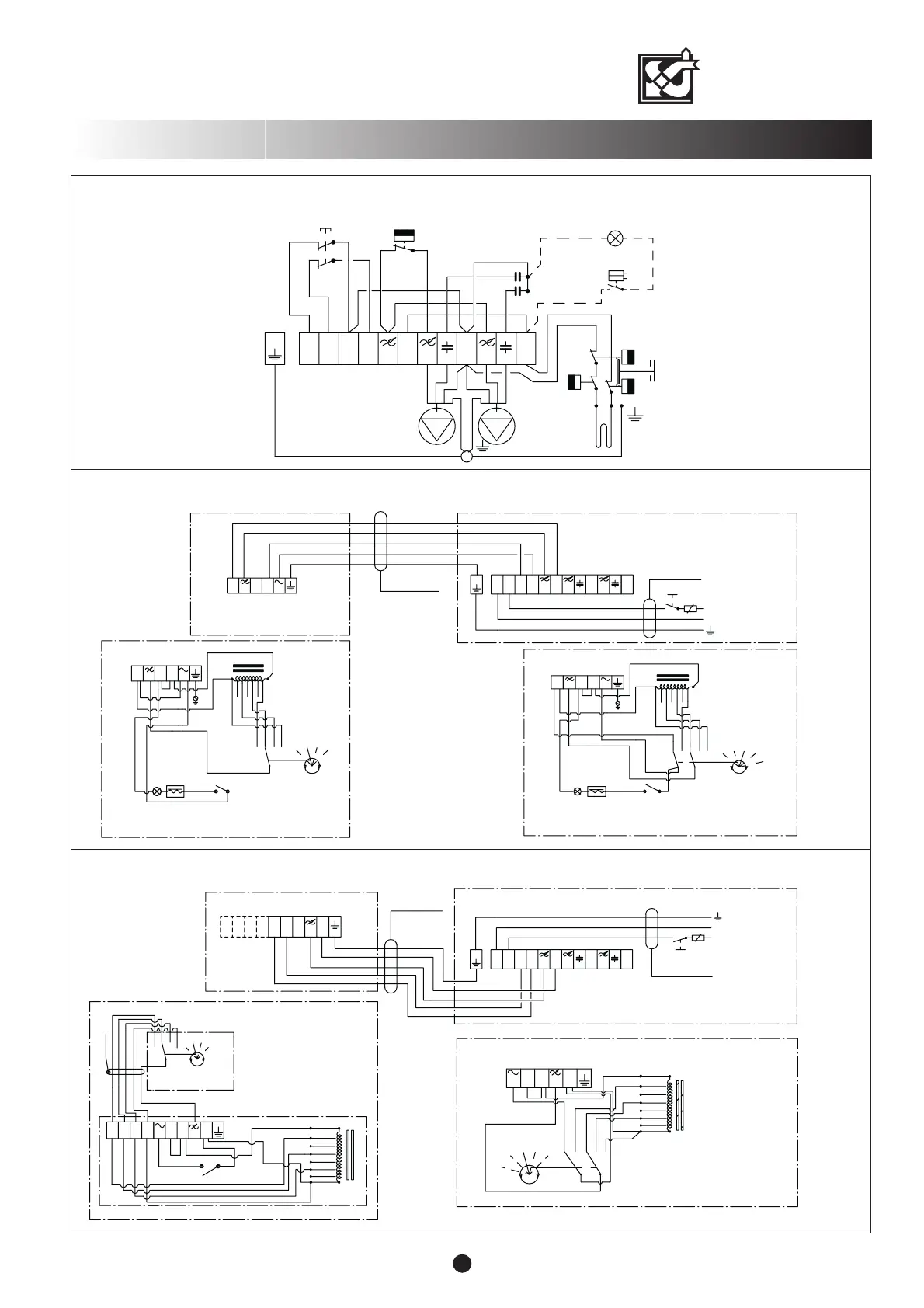
F1 Supply air fan
F2 Extract air fan
T1 Post-heating radiator regulating
thermostat 0...+25
°
C (Limitation)
T2 Overheat protector +80
°
C
T3 Antifreezing thermostat +4
°
C
R Post-heating radiator
K Capacitor
SS Safety switch
Wire colours:
m = black
r = brown
s = blue
F1
F2
K
TK
T1
m
s
s
s
s
s
s
m
m
m
m
m
L
N
N
1
L
m
T3
m
m
K
r
r
N
L
m
80°C
80°C
R
T2
1
s
L
1
m
+
V
-
W
2
3
Speed selector switch
(factory setting)
VALLOX 75/95
9
ELECTRICAL CONNECTIONS/ELECTRIC RADIATOR
3 X 1.5 S
L
10 A
N
N
1
L
N
L
1
L
L
N
L
3
2
N
INTERNAL ELECTRICAL
CONNECTION OF THE
HOODS
N
L
VALLOX 95/75
COOKER HOOD
PTXP(A) 27983
COOKER HOOD
PTX 27983
HOOD
Distribution
panel
L
3
2
3
0
V
1
6
0
V
1
2
0
V
7
0
V
L
N
9
0
V
1
3
5
V
1
8
0
V
1
5 X 1.5 S
2
3
PL 11
L
1
2
3
2
3
0
V
1
6
0
V
1
2
0
V
7
0
V
L
L
2
N
9
0
V
1
3
5
V
4
L
2
1
8
0
V
1
2
3
PL 11
0
4
N
L
3
N
VALLOX 75/95, 3510, external electrical connection with cooker hood PTX 27982 or PTXP(A) 27982
24
N
2
L
N
N
5 X 1.5 S
L
3 X 1.5 S
N
A
N
L
CONTROL CENTRE
1992A EK
3
1
L
L
N
L
NL
L
L
3
CONTROL CENTRE
N
N
L
13
2
1
10 A
VALLOX 95/75
Distribution
panel
CONTROL CENTRE
1992A
2
N
1
1
L
3
2
3
L
3
L
N
N
L
2
4
120 V
90 V
70 V
230 V
135 V
160 V
180 V
2
1
3
4
1
2
3
4
b
5
*
1
.
5
120 V
90 V
70 V
230 V
135 V
160 V
180 V
3
2
1
4
0
(Forced control centre doesn´t have a
"0" setting in speed selector switch)
VALLOX 75 / 95, model 3510, external electrical connection with control centre
VALLOX 75 / 95, model 3510, internal electrical connection
(Forced control centre doesn´t
have a speed selector switch)

Other manuals for Vallox 75

Related product manuals