EasyManua.ls Logo

Varec 6700 - Page 11

Varec 6700
74 pages
Print Icon
To Next Page IconTo Next Page
To Next Page IconTo Next Page
To Previous Page IconTo Previous Page
To Previous Page IconTo Previous Page
Loading...
Introduction
Varec, Inc. 3
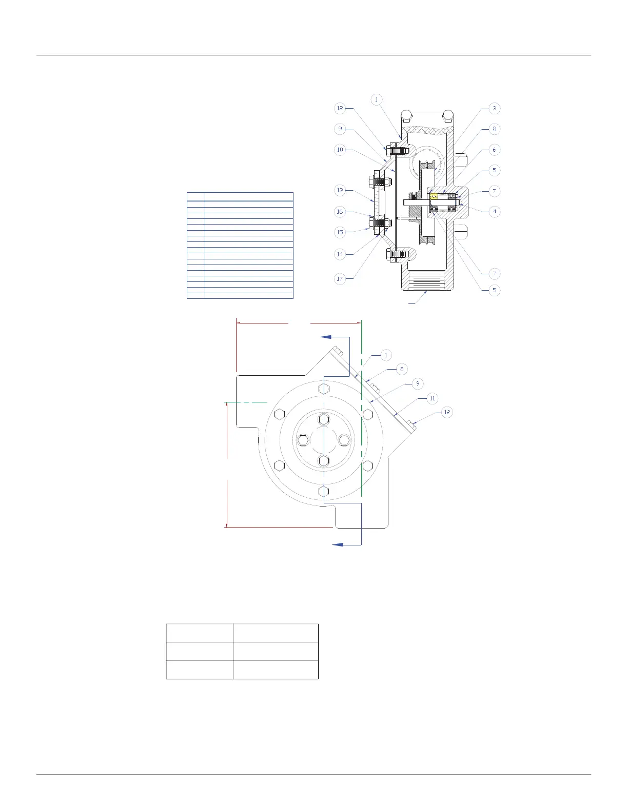
Figure 1: 6700 LLI Accessory Drive Elbow
Table 1: Part Numbers
Type Part Number
English BM4129
Metric BM8564
6.12
[155]
Section: A - A
6.12
[155]
A
A
1-1/2 Inch NPT (Typical)
HOUSING
1
FLANGE GASKET
HEX HEAD CAP SCREW
HEX HEAD CAP SCREW
COVER GASKET
RETAINING RING
RETAINING RING
12
FLANGE CAP
CAP GASKET
HEX NUT
WASHER
13
15
17
16
14
11
FLANGE9
10
COVER
SHAFT
BEARING
SPACER
SHEAVE
2
4
5
6
7
8
3
DESCRIPTIONITEM

Table of Contents