EasyManua.ls Logo

Venmar 6LC - Page 54

Venmar 6LC
60 pages
Print Icon
To Next Page IconTo Next Page
To Next Page IconTo Next Page
To Previous Page IconTo Previous Page
To Previous Page IconTo Previous Page
Loading...
24
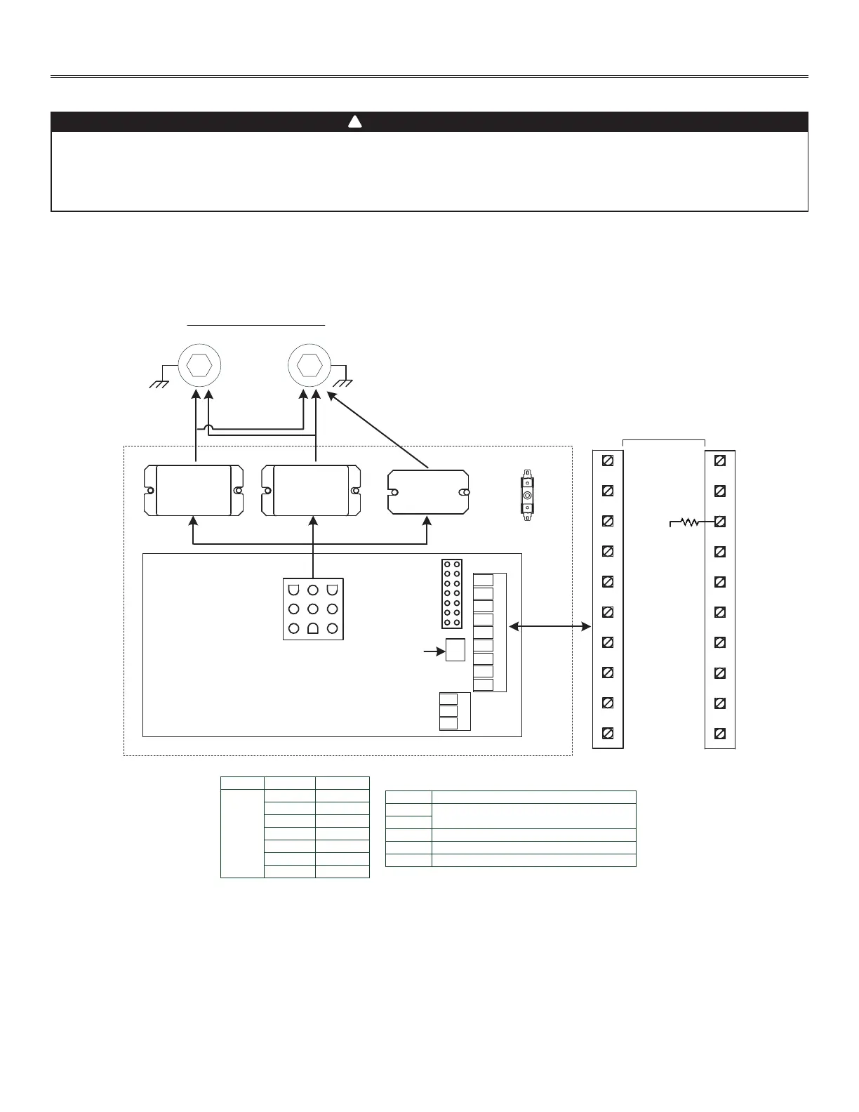
Annexe H
SCHÉMAS ÉLECTRIQUES
(Évacuation)
M1
SCHÉMA DU SYSTÈME
Moteurs des ventilateurs
M2
(Distribution)
J1
J2
J3
J4
JU1
De/Vers
J3-9
J3-1
J3-8
J3-9
J3-6
J3-7
J3-8
J3-8
J3-2
J3-8
J3-9
Relais basse
vitesse
K2
K3
K1
Relais haute
vitesse
Relais de
dégivrage
F1
PIÈCE
DESCRIPTION
K1
Relais DPST 120 VCA, 1 HP, 30 A @ 120 VCA
K2
K3
Relais UPDT 120 VCA, 1 HP, 30 A @ 120 VCA
F1
Fusible à action rapide 5 A et support de fusible
UCB1
Carte électronique
PIÈCE
C
JU1
OFF
B OFF
A OFF
D ON
E ON
F ON
G ON
POSITION RÉGLAGE
Thermistor de
dégivrage 10K
Boîtier électrique principal
UCB1
6LC, V6LC,12LC et V12LC - Dégivrage par évacuation - Basse vitesse normale
arrêt
GREEN
YELLOW
LOW
COM
HIGH
BLACK
RED
OCC.
UNOCC.
REM FAN
INTERLOC
987654321
FF IOCOLYR GB
VE0460F
Réf : 1107006_REV-A
123
456
9 78
3.9K
AVERTISSEMENT
Danger d’électrocution. Avant d’effectuer les travaux d’entretien ou de réparation, toujours couper l’alimentation
électrique à l’appareil.
Cet appareil est muni d’une protection contre les surcharges (fusible). Un fusible brûlé indique une surcharge ou un
court-circuit. Si le fusible brûle, couper l’alimentation électrique à l’appareil. Cesser de l’utiliser et communiquer avec
le soutien technique.
!