EasyManua.ls Logo

Venset TS700A - Specifications and Main Dimensions

Venset TS700A
17 pages
Print Icon
To Next Page IconTo Next Page
To Next Page IconTo Next Page
To Previous Page IconTo Previous Page
To Previous Page IconTo Previous Page
Loading...
Electric TV Lift, TS700A & TS1000A
4
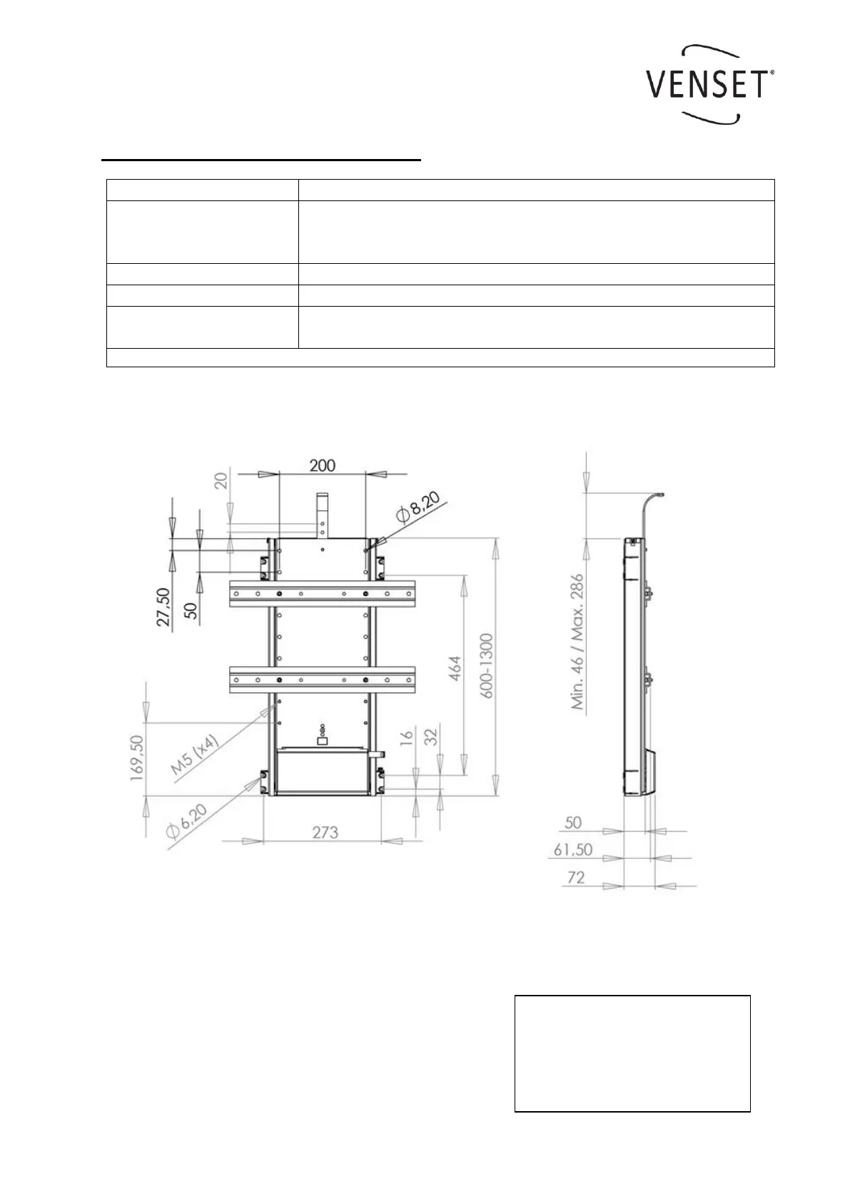
2. Specifications and main dimensions.
Materials and weights:
Steel, black powder coated - Weight ~ 17/23 kg
Max. working loads:
65 kg (by standard installation)
29 kg (when lift is mounted upside down)
100 kg peak load
Duty cycle:
10% by 50% of working load or max 2 min. continuously
Operation:
Remote and rocker switch
Voltage:
Standby Consumption:
100-240 VAC / 50/60Hz
< 0,15 Watt
Above specifications may vary depending on local temperature, humidity and input voltage.
Main dimensions, TS700A [mm]:
VESA, TS700A:
400x400, 400x200, 400x100
300x300 (see venset.com for
mounting instruction)
200x200, 200x100
100x100