EasyManua.ls Logo

Vente Unique PH050012 - Dépannage

Vente Unique PH050012
Print Icon
To Next Page IconTo Next Page
To Next Page IconTo Next Page
To Previous Page IconTo Previous Page
To Previous Page IconTo Previous Page
Loading...
VS-April-2016
DÉPANNAGE
Vo
i
c
i
quelques astuces utiles pour vous aider à diagnostiquer e
t
à résoudre quelques problèmes communs.
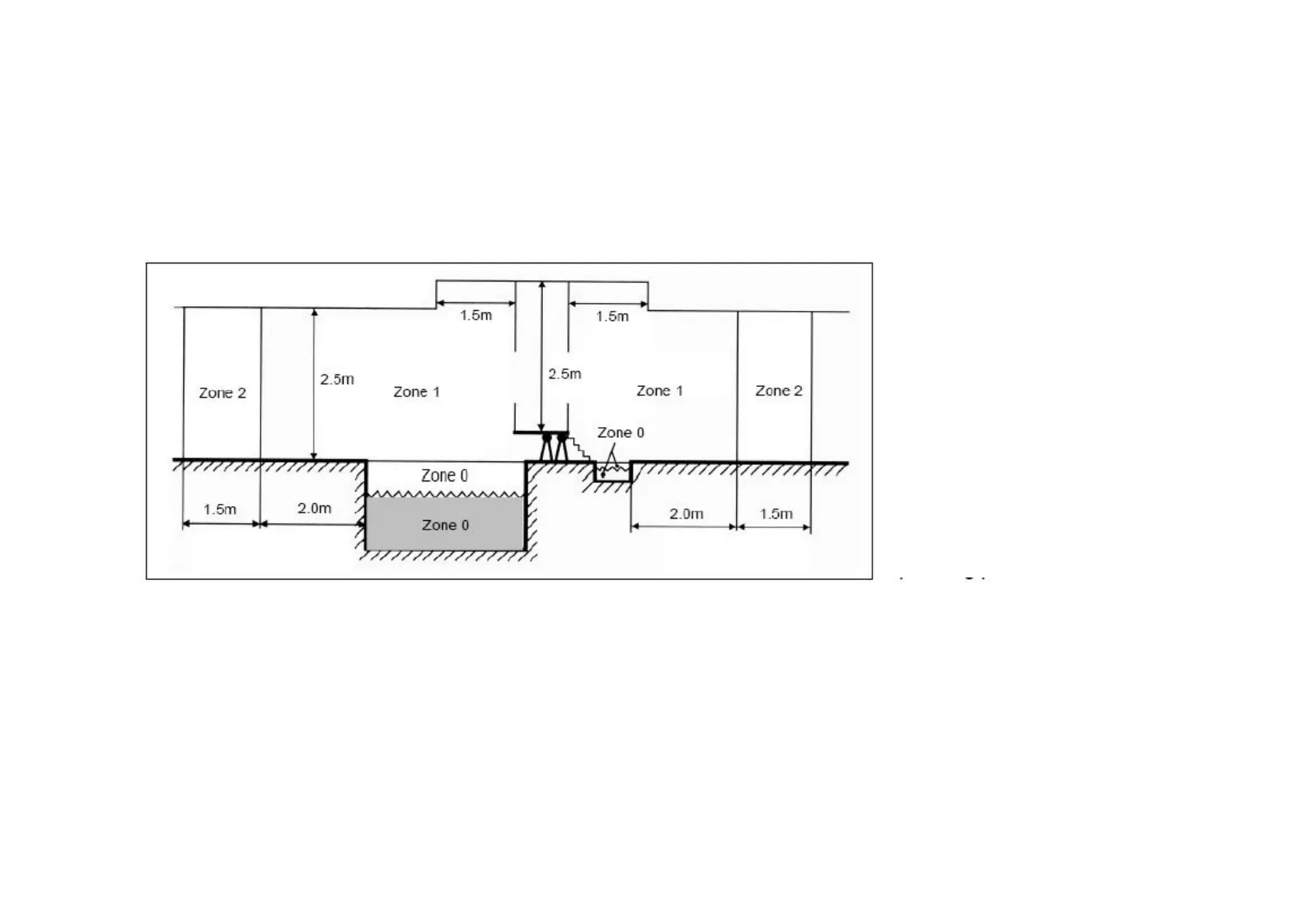
NIVEAU DE PROTECTION PAR RAPPORT À L'EAU
Mise en garde : Les niveaux de protection par rapport à l'eau de l'appareil diffèren
t
selon
l
es zones dans
l
esque
ll
es se
trouve le produit. Voir le schéma suivant
:
Remarque
:
Les
dimensions de la zone
mesurée sont
li
mi
t
ées
par les murs et les
cloisons fixes. Figure
c
i
-dessus—Dimensions
des zones pour les
piscines et les bassins.
SÉCURITÉ ET DÉCLARATIONS
1. Une
li
aison équipotentie
lle
supplémentaire locale doit relier tous les éléments conducteurs externes dans
l
es Zones 0, 1
e
t
2 avec des conducteurs de pro
t
ection de
t
ous les é
l
éments conducteurs exposés se trouvant dans ces zones.
2. Les mesures de protection par un emplacement non conducteur et par une
lia
ison équipotent sans connexion à la masse
ne sont pas autorisées.
3. L'équipement électrique doit disposer au moins des degrés de protection suivants
:
4. Les boîtes de dérivation en doiven
t
pas ê
t
re ins
t
allées dans les Zones 0 et 1, sauf, dans la zone 1, avec des circuits à
t
rès
basse tension de sécurité.

Related product manuals