EasyManua.ls Logo

Vertiv Liebert DA250 - Page 85

Vertiv Liebert DA250
91 pages
Print Icon
To Next Page IconTo Next Page
To Next Page IconTo Next Page
To Previous Page IconTo Previous Page
To Previous Page IconTo Previous Page
Loading...
REV : 4
REV DATE : 3/20
DPN003965
Page :2 /2
Form No.: DPN001040_REV4
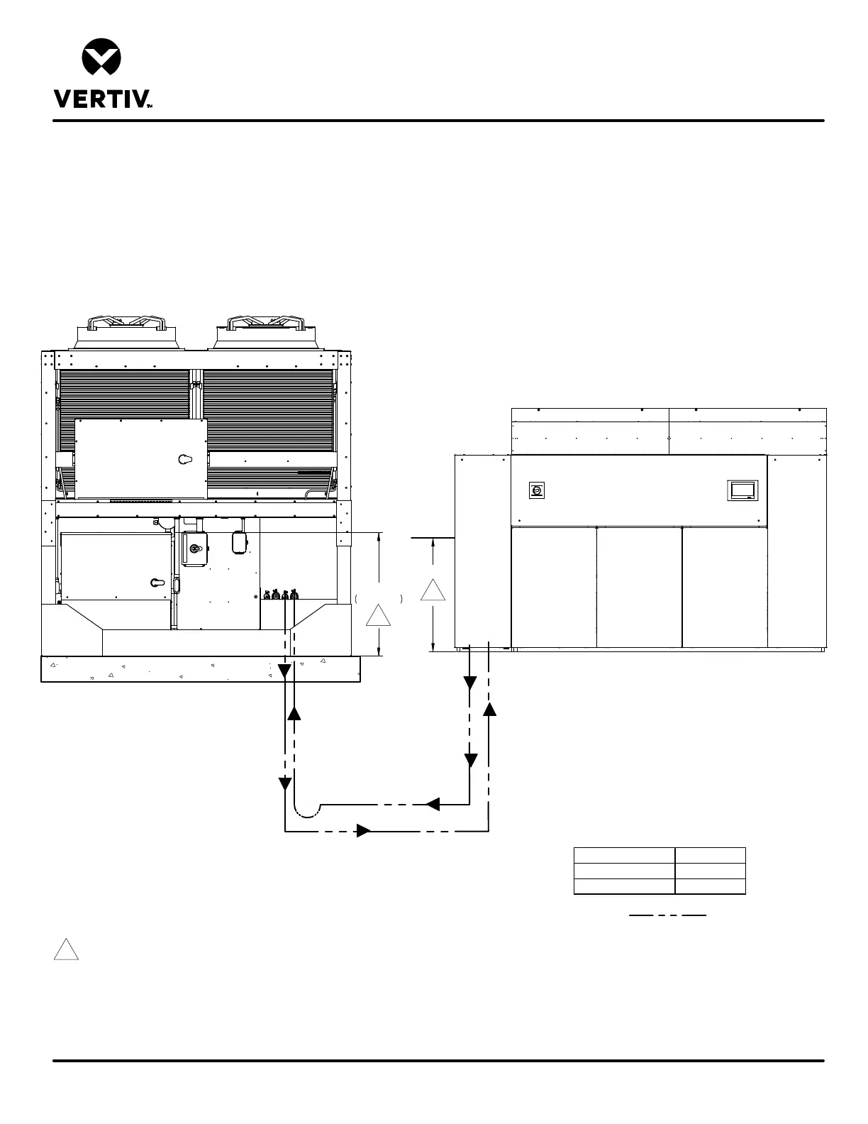
AIR COOLED PIPING SCHEMATIC
LIEBERT
®
DSE
44 1/2inch
1130mm
Notes:
1. The outlet of the receiver must be higher than the elevation of the EEV inside the indoor unit.
2. Unit must be trapped at bottom of riser with any rise over 5 feet (1.5m) high. If rise exceeds 25 feet (7.5m), then a trap is required in 20 foot
(6.1m) increments or evenly divided. DA250 with horizontal discharge has internally installed traps on the hot gas discharge line.
3. Pitch horizontal hot gas piping at a minimum of ½ inch per 10 feet (42mm per 10m) so that gravity will aid in moving oil in the direction of the
refrigeration flow.
4. Unit piping entrance varies by unit and may be through the top of the unit.
5. All indoor and outdoor field refrigerant piping must be insulated, ½ inch minimum. All outdoor insulation must be UV and ozone resistant.
6. Consult factory for any exceptions to the above guidelines.
Field Piping
Internal EEV Height H inch ( mm)
DA125-DA165 43 (1092)
DA250 56 (1422)
Liquid
Return
Liquid
Return
Liquid
Return
Hot Gas
Discharge
Hot Gas Discharge
Hot Gas
Discharge
CIRCUIT 1
CIRCUIT 2
1
H
1
Notes:
DA250 with horizontal discharge should be piped out
the top of unit.
Liebert
®
MCV Condenser
Unit
Liebert
®
EconoPhase
Unit
Liebert
®
MCV AND DA125-250 AT SIMILAR LEVEL
Liebert
®
DSE

Table of Contents

Related product manuals