EasyManua.ls Logo

Vertiv Liebert MCL165 - Page 59

Vertiv Liebert MCL165
127 pages
Print Icon
To Next Page IconTo Next Page
To Next Page IconTo Next Page
To Previous Page IconTo Previous Page
To Previous Page IconTo Previous Page
Loading...
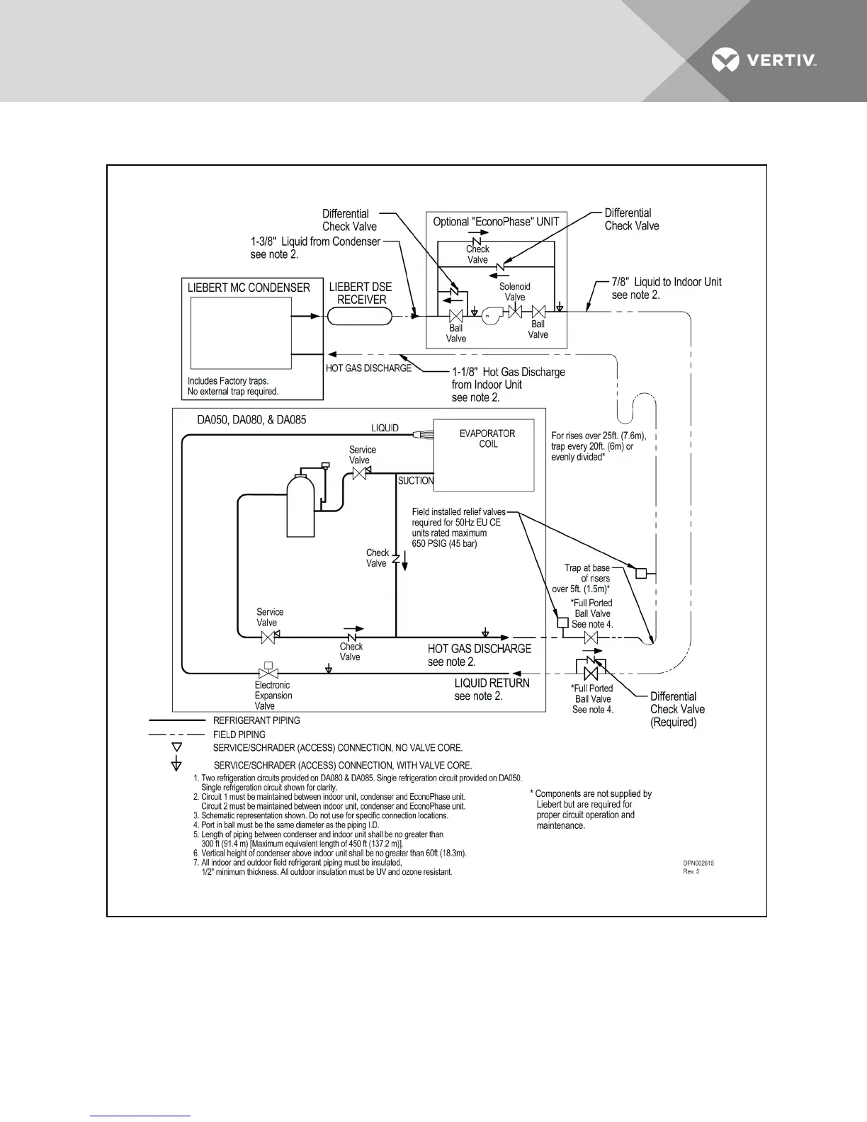
Figure 5.5 Piping schematic—Liebert DSE
, air-cooled DA050, DA080 and DA085 models
Vertiv | Liebert® MC Installer/User Guide | 59

Table of Contents

Other manuals for Vertiv Liebert MCL165

Related product manuals