EasyManua.ls Logo

Vertiv Liebert MCS056 - Page 100

Vertiv Liebert MCS056
127 pages
Print Icon
To Next Page IconTo Next Page
To Next Page IconTo Next Page
To Previous Page IconTo Previous Page
To Previous Page IconTo Previous Page
Loading...
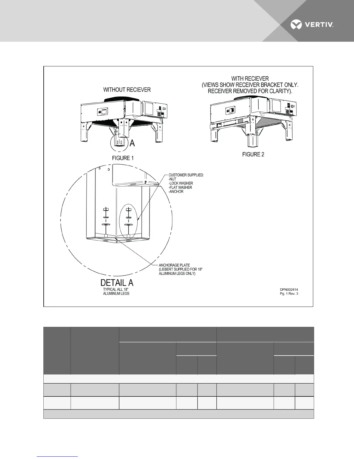
Figure 10.1 Seismic anchorage data for one-fan models
Models
Figure # in Figure 10.1
above
Importance Factor Iρ= 1.0 Importance Factor Iρ= 1.5
Maximum Compressive
Reaction lb
Maximum Anchor
Maximum Compressive
Reaction lb
Maximum Anchor
Tensile
lb
Shear
lb
Tensile
lb
Shear
lb
MCS028
Without
Receiver
Figure 1 37 14 14 47 24 21
With
Receiver
Figure 2 43 15 23 56 27 35
MCM040
Table 10.1 Seismic anchorage loads for one-fan models
Vertiv | Liebert® MC Installer/User Guide | 100

Table of Contents

Other manuals for Vertiv Liebert MCS056

Related product manuals