EasyManua.ls Logo

Vertiv Liebert MCS056 - Page 60

Vertiv Liebert MCS056
127 pages
Print Icon
To Next Page IconTo Next Page
To Next Page IconTo Next Page
To Previous Page IconTo Previous Page
To Previous Page IconTo Previous Page
Loading...
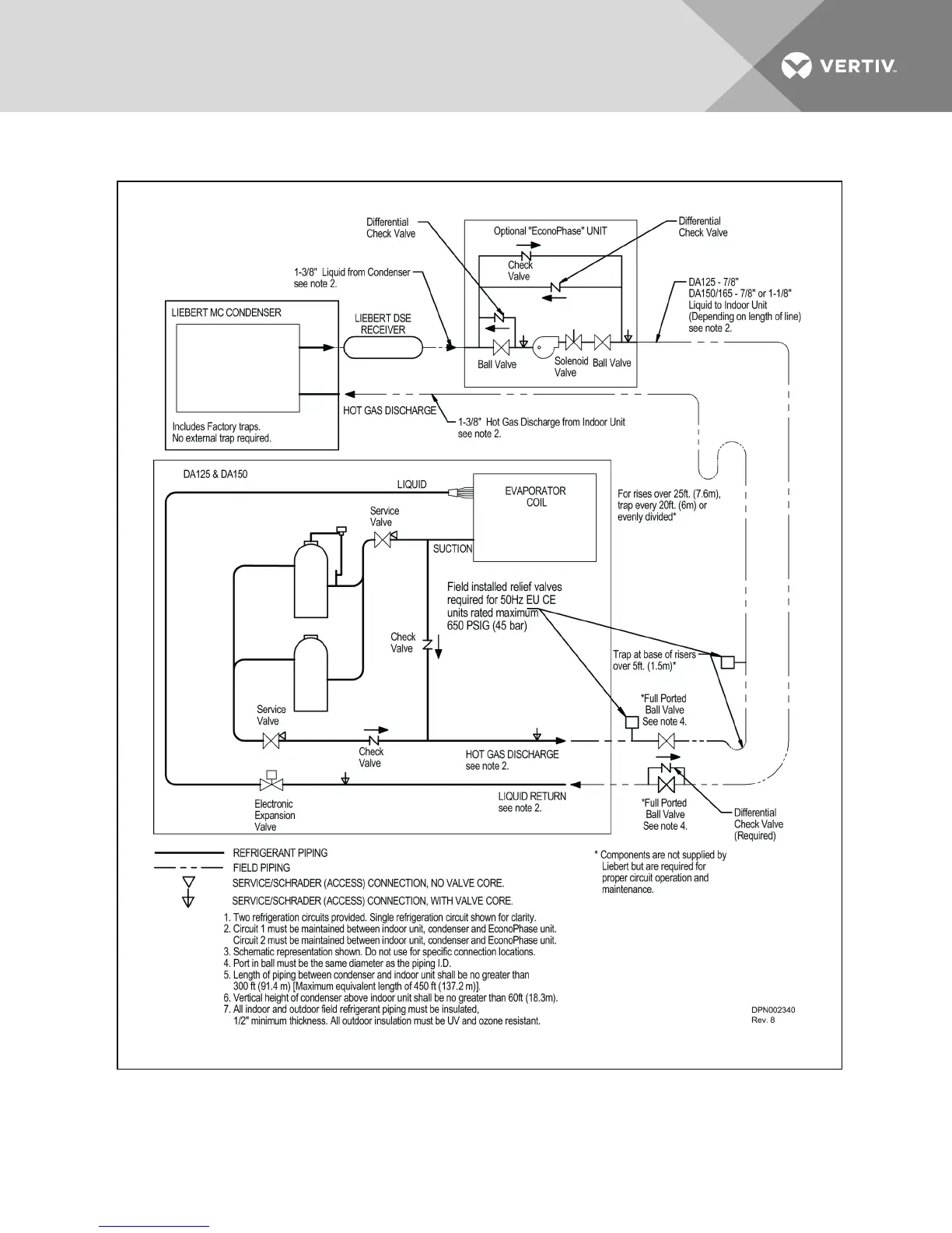
Figure 5.6 Piping schematic—Liebert DSE
, air-cooled DA125, DA150 and DA165 models
Vertiv | Liebert® MC Installer/User Guide | 60

Table of Contents

Other manuals for Vertiv Liebert MCS056

Related product manuals