EasyManua.ls Logo

Vertiv Liebert Mini-Mate MT060 - Page 74

Vertiv Liebert Mini-Mate MT060
80 pages
Print Icon
To Next Page IconTo Next Page
To Next Page IconTo Next Page
To Previous Page IconTo Previous Page
To Previous Page IconTo Previous Page
Loading...
REV : 1
REV DATE : 8/18
DPN004840
Page :1 /2
Form No.: DPN001040_REV4
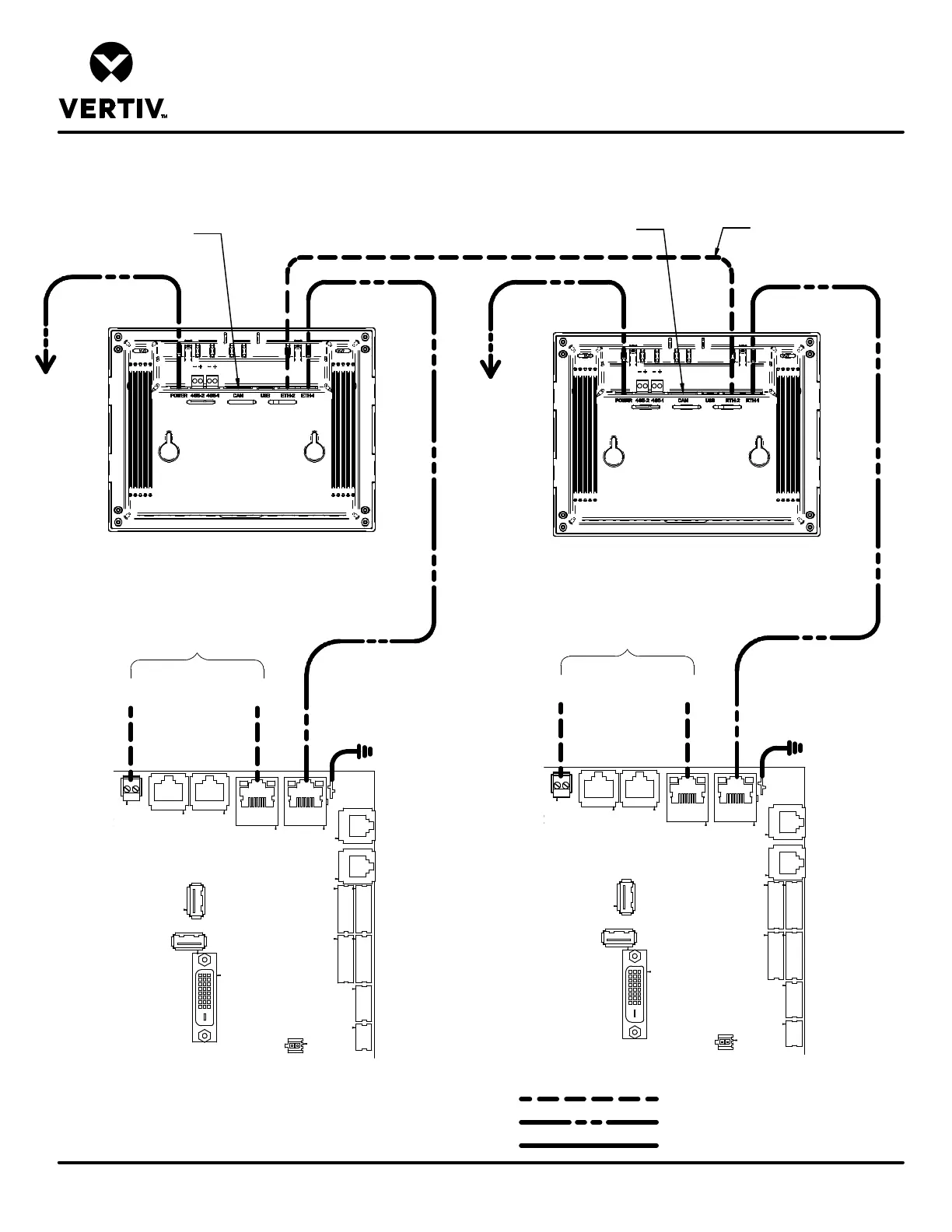
LIEBERT MINI-MATE
VARIABLE CAPACITY
UNIT TO UNIT NETWORK CONNECTIONS
REAR VIEW OF DISPLAY
REAR VIEW OF DISPLAY
TB3
P71 P72
P74 P64
E5
P
6
7
P
6
6
P
1
1
P
1
2
P
2
1
P
2
0
P
1
3
P
7
P76
P95
P100
P75
2
TB3
P71 P72
P74 P64
E5
P
6
7
P
6
6
P
1
1
P
1
2
P
2
1
P
2
0
P
1
3
P
7
P76
P95
P100
P75
2
iCOM
MICROPROCESSOR
AND I/O BOARD
iCOM
MICROPROCESSOR
AND I/O BOARD
SITE AND BMS
COMMUNICATION
CONNECTIONS
RS485
ETHERNET
TO
TERMINALS
13,14 AND 15
TO
TERMINALS
13,14 AND 15
DO NOT USE CANBUS
CONNECTORS
DO NOT USE CANBUS
CONNECTORS
SITE AND BMS
COMMUNICATION
CONNECTIONS
RS485
ETHERNET
ETHERNET CABLE
(FIELD SUPPLIED)
Notes:
1. Refer to DPN004802 for connection points on Liebert Mini-Mate unit.
2.
Refer to DPN004803 for general arrangement and field connections.
TWO 3 TON UNITS NETWORKED
Field Supplied Wiring - Unit Networking & Site BMS
Field Supplied Wiring - Individual Display
Factory Supplied Ground Wire

Table of Contents

Related product manuals