EasyManua.ls Logo

VEVOR HS-660 - Page 6

VEVOR HS-660
11 pages
Print Icon
To Next Page IconTo Next Page
To Next Page IconTo Next Page
To Previous Page IconTo Previous Page
To Previous Page IconTo Previous Page
Loading...
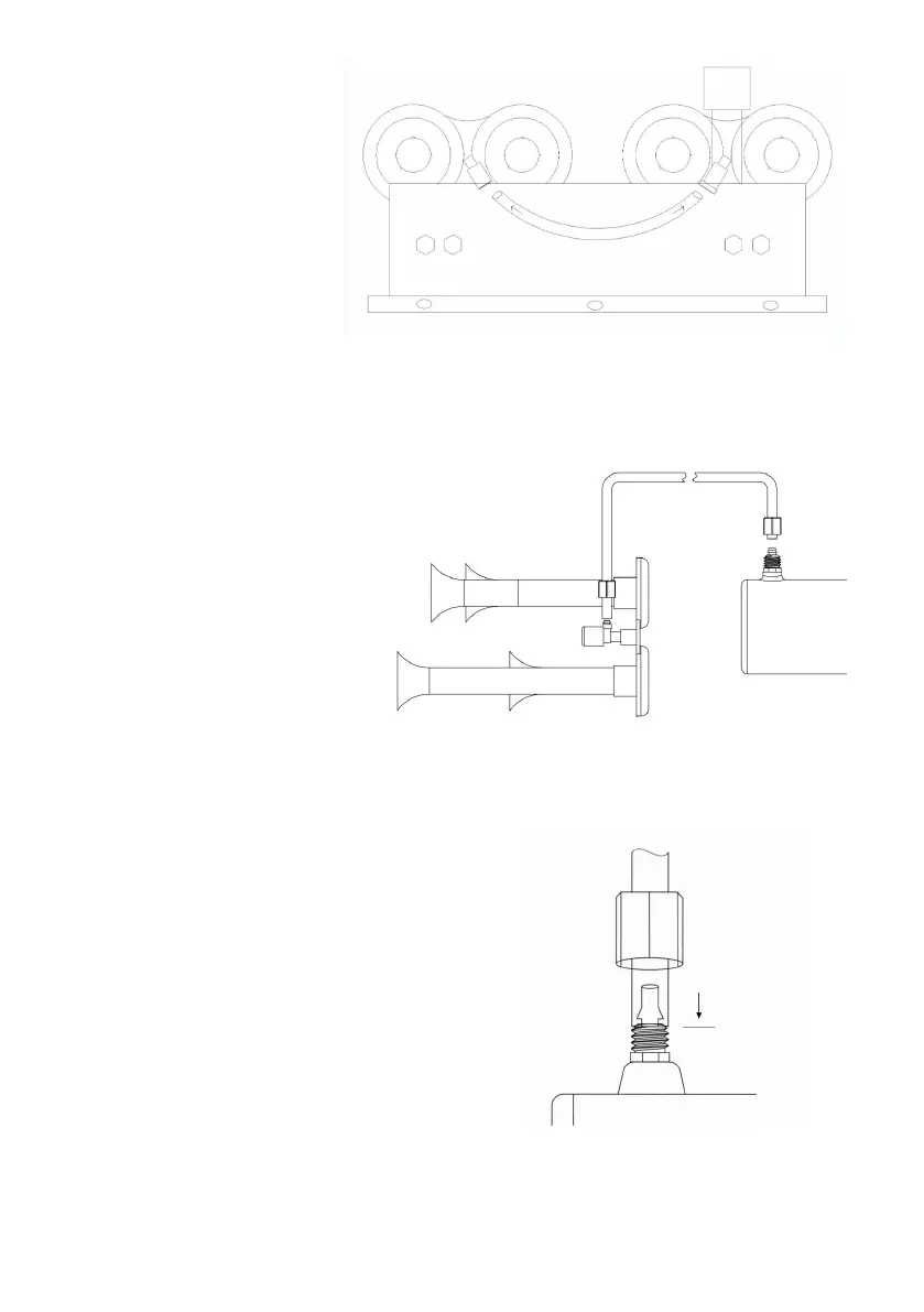
2.2 Model HS-660 Horn
Assembly Step 2Insert
the connectors of the
two horns using the
fitting hose butt.
Step 3: Attach the coupling
nut to both ends of the hose.
Step 4: Plug the hose into the connector
(hose will be easier to install after
heating)