EasyManua.ls Logo

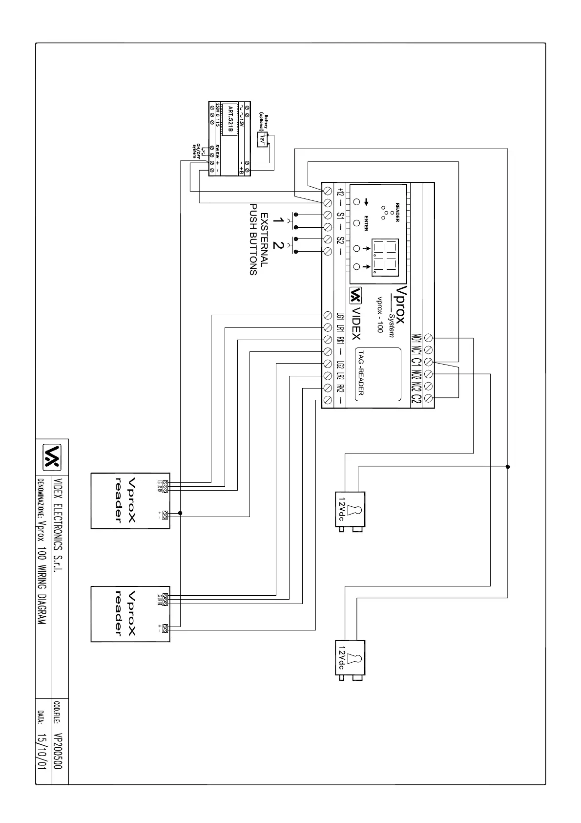
Videx VproX-100 - Wiring Diagram

Videx VproX-100
7 pages
Print Icon
To Next Page IconTo Next Page
To Next Page IconTo Next Page
To Previous Page IconTo Previous Page
To Previous Page IconTo Previous Page
Loading...
6
VP100