EasyManua.ls Logo

Viessmann Energy meter - Power Supply

Viessmann Energy meter
20 pages
Print Icon
To Next Page IconTo Next Page
To Next Page IconTo Next Page
To Previous Page IconTo Previous Page
To Previous Page IconTo Previous Page
Loading...
10
Regulations
Connect the power supply and implement all safety
measures (e.g. RCD circuit) in accordance with
IEC 60364-4-41, the connection requirements of
your local power supply utility, and VDE or national
regulations.
Disconnect the system by means of a device that
simultaneously separates all non-earthed conductors
with at least 3 mm contact separation.
In addition, we recommend installing an AC/DC-sen-
sitive RCD (RCD class B ) for DC (fault) cur-
rents that can occur with energy efficient equipment.
Danger
Incorrect core assignment can result in serious
injury and damage to the appliance.
Never interchange cores "L" and "N".
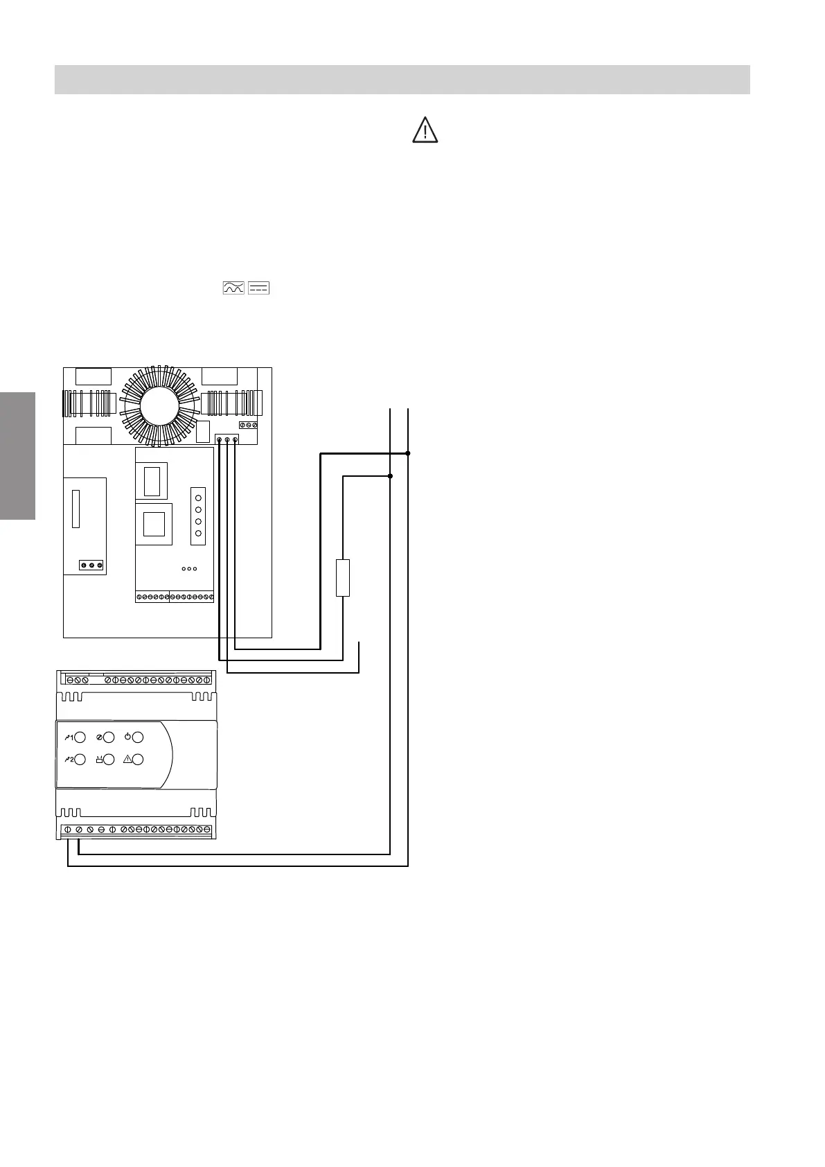
In a 1-phase power circuit
S
1 2
3
4
5
6
7
8 9 10
1112
13
14
1516
17
181920
2122
23
24
2526
N L1 L2 L3
?
L1 N
230 V~
A
B
C
D
E
N
GND
L
Fig. 5
A
Output control module
B
Fuse 16 A (slow)
C
Power cable for energy meter
D
Energy meter
E
Power cable for output control module
Electrical connections
Power supply
5678 581 GB
Service