EasyManua.ls Logo

Viking ESFR - General Piping and Material Recommendation

Viking ESFR
53 pages
Print Icon
To Next Page IconTo Next Page
To Next Page IconTo Next Page
To Previous Page IconTo Previous Page
To Previous Page IconTo Previous Page
Loading...
15
solution above freezing for air below the primary check valve. Due to
difficulty in servicing and insulating the check valve, it is recommended to
install the deluge and check valve near floor level at the base of the main
riser in the heated area allowing approximately 1 to 2 ft between the
outlet of deluge valve and inlet of the primary Easy Riser
TM
Check Valve
and install the maximum length of pipe from the primary Easy Riser
TM
Check Valve to the Isolation check valve that is between the freezer wall
and the primary check valve.
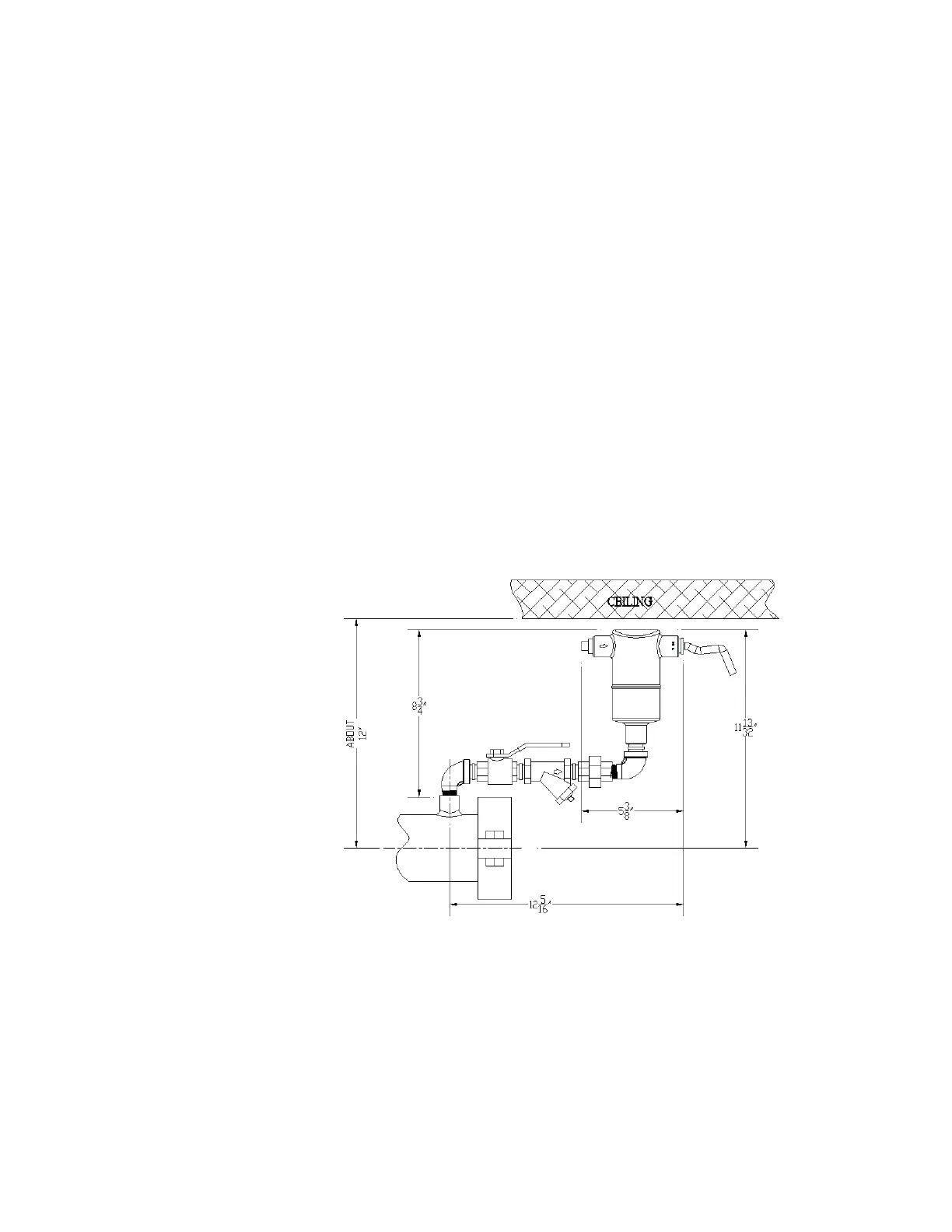
Air vent valves or manual bleed valves must be installed at the highest
and most remote points on the tree piping system in order to vent out all
air during fill of the 35% or 50% premix of propylene glycol/water solution
in the system. Additional vent or bleed valves shall be installed on the end
of each branch line at high points and feed mains at high points to ensure
air is vented from the system. This is required in order to eliminate
compressible gas (air) from the system when setting supervisory pressure
from the antifreeze CS-1 pump system. Also, the manual vent valves may
be used for multiple sample points of the system for quality testing of the
antifreeze solution. The Viking Model AV-1 Automatic Air/Vent Valve is
recommended for this use. It automatically vents air during fill and breaks
the vacuum for faster drainage of the system when performing
maintenance or draining the system after operation.
AV-1 Air Vent Assembly
5.1.1.1 General Piping and Material Recommendations
In order to prevent leaks and preserve the antifreeze
solution, it is imperative that grooved pipe ends are smooth,
round, and free of burrs, flat spots, and weld seam

Table of Contents

Other manuals for Viking ESFR