EasyManua.ls Logo

Viking FGIM5151 - Page 11

Viking FGIM5151
20 pages
Print Icon
To Next Page IconTo Next Page
To Next Page IconTo Next Page
To Previous Page IconTo Previous Page
To Previous Page IconTo Previous Page
Loading...
11
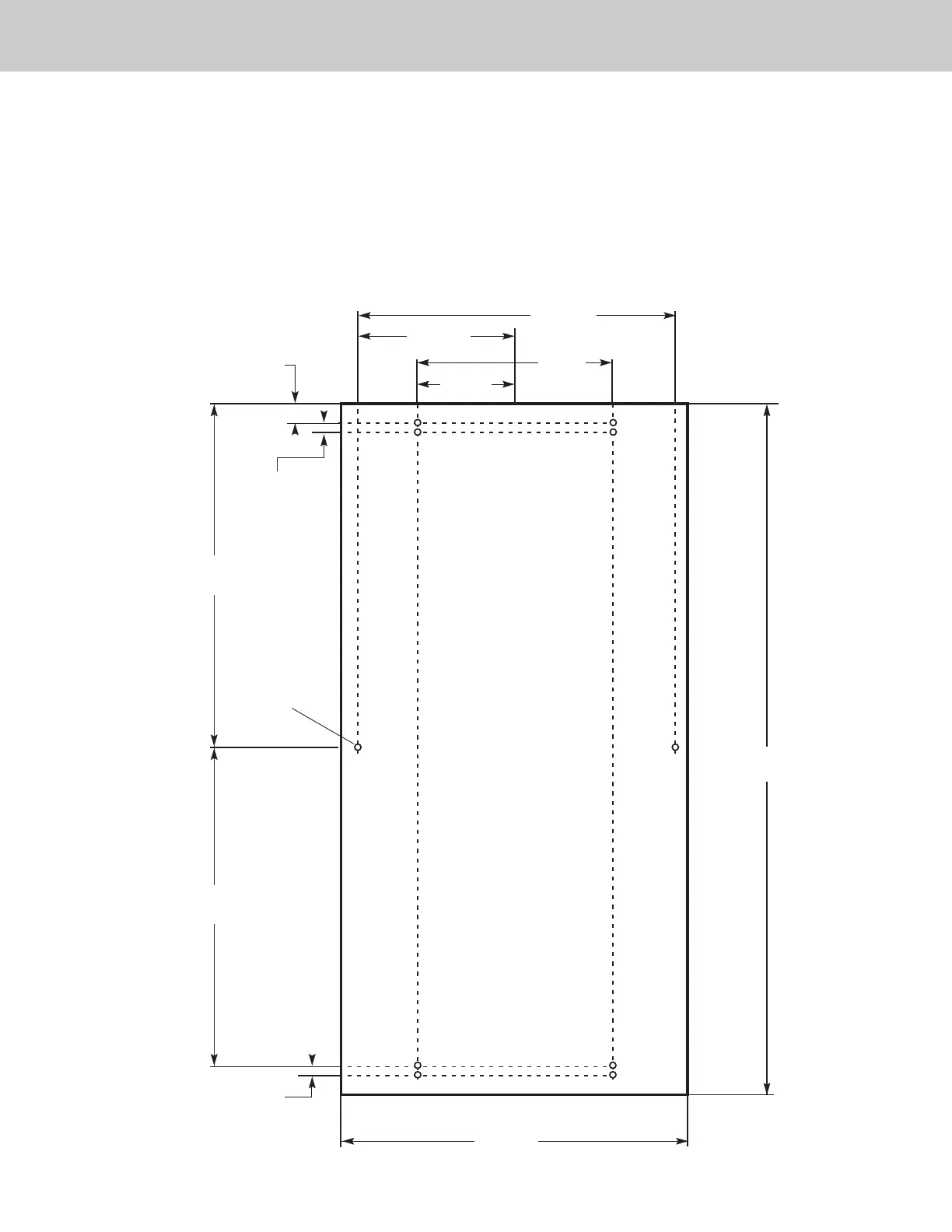
6. Cut panel to length (cabinet space - kickplate space - top clearance = length).
7. Determine top of panel.
8. Mark hole locations using drawing on the back of these instructions. Drawing assumes top of panel will be flush with
top of door. Measure hole locations from the top of the panel.
9. Drill pilot holes for wood screws. Use drill stop to prevent drilling through the panel.
10. Mount panel to door using wood screws or supplied panel mounting screws.
Note: When installed, ice machine must be adjusted for height to position top of door to desired clearance.
13-9/16”
(34.4 cm)
8-1/4”
(20.9 cm)
6-25/32”
(17.7 cm)
4-1/8”
(10.5 cm)
13/16”
(2.4 cm)
13/32”
(1.3 cm)
13/32”
(1.3 cm)
14-7/8”
(37.9 cm)
30-5/16”
(77.0 cm)
14-11/16”
(37.3 cm)
ø 1/8”
TYP. (10)
13-31/64”
(34.3 cm)
CUSTOM PANEL DIMENSIONS

Related product manuals