EasyManua.ls Logo

Viking VCSB483 - Page 18

Viking VCSB483
41 pages
Print Icon
To Next Page IconTo Next Page
To Next Page IconTo Next Page
To Previous Page IconTo Previous Page
To Previous Page IconTo Previous Page
Loading...
18
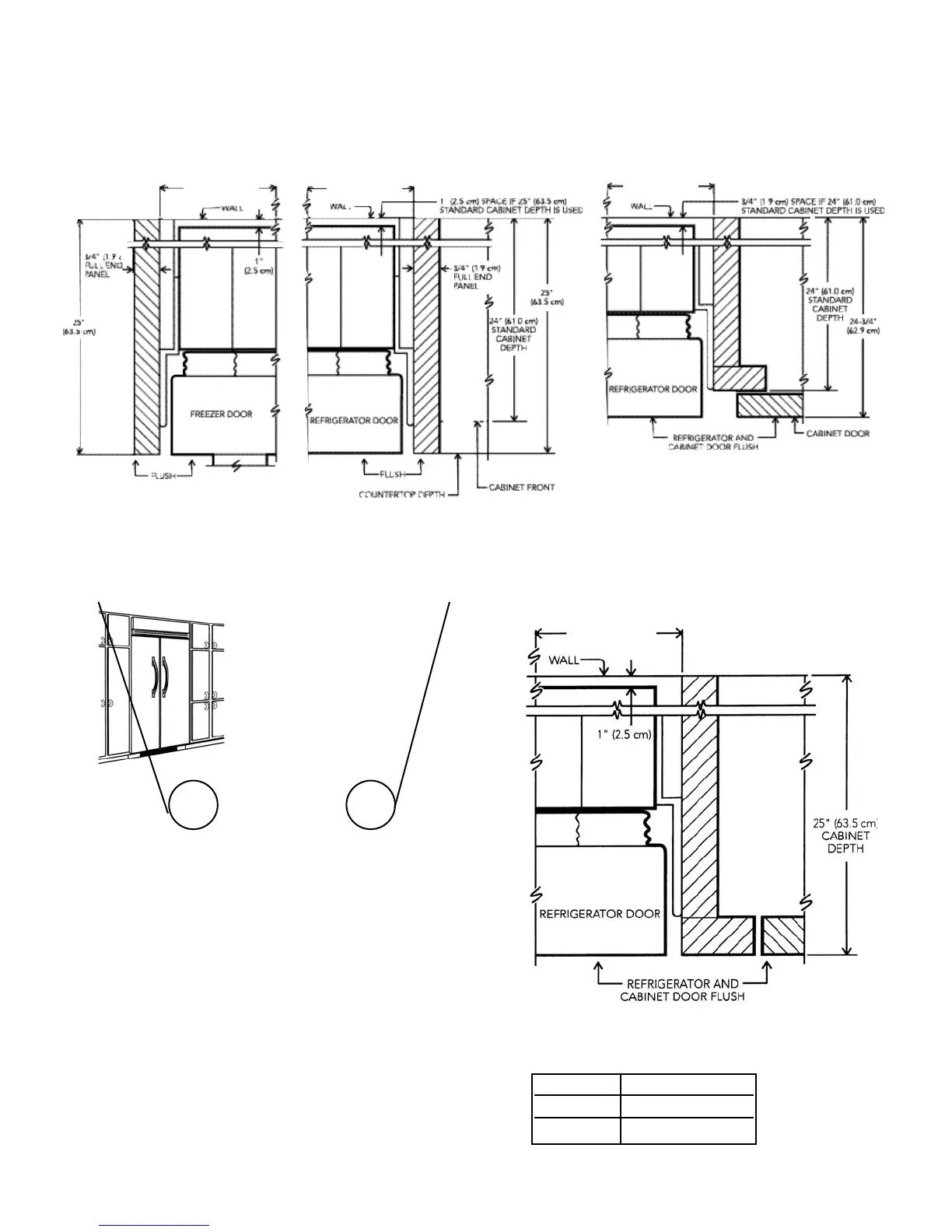
CABINET AND PANEL INFORMATION - DESIGNER MODELS
Designer models fit flush in standard 24” (61.0 cm) deep cabinet openings with no protrusion into the room except 2”
(5.1 cm) curved handle depth
DÉTAIL A-A DÉTAIL B-B
DÉTAIL A-A DÉTAIL B-B
WITH ADJACENT CABINETS;
OVERLAPPING CABINET DOORS
WITH ADJACENT CABINETS;
FLUSH MOUNT CABINET DOORS
AA
AA
AA
AA
AA
42" W 42"(106.7 cm)
48" W 48"(121.9 cm)

Related product manuals