EasyManua.ls Logo

Vinotemp VC7S - Page 19

Vinotemp VC7S
68 pages
Print Icon
To Next Page IconTo Next Page
To Next Page IconTo Next Page
To Previous Page IconTo Previous Page
To Previous Page IconTo Previous Page
Loading...
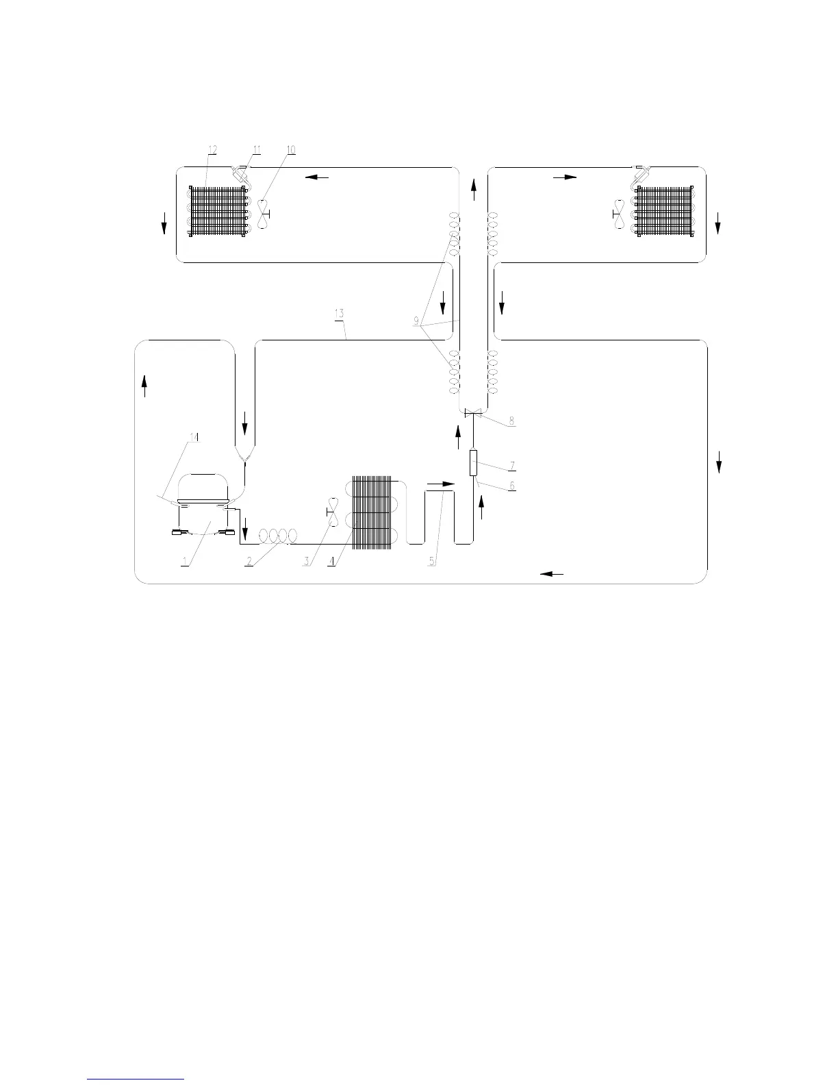
3.1.2 For models with Solenoid Valve
1. Compressor
2. Spiral Tube
3. Condenser Fan
4. Condenser
5. Hot Pipe
6. Process Tube
7. Filter Drier
8. Solenoid Valve
9. Capillary
10. Evaporator Fan
11. Accumulator
12. Evaporator
13. Suction Tube
14. Process Tube

Related product manuals