EasyManua.ls Logo

VOKERA Compact - Page 12

VOKERA Compact
44 pages
Print Icon
To Next Page IconTo Next Page
To Next Page IconTo Next Page
To Previous Page IconTo Previous Page
To Previous Page IconTo Previous Page
Loading...
10
Compact
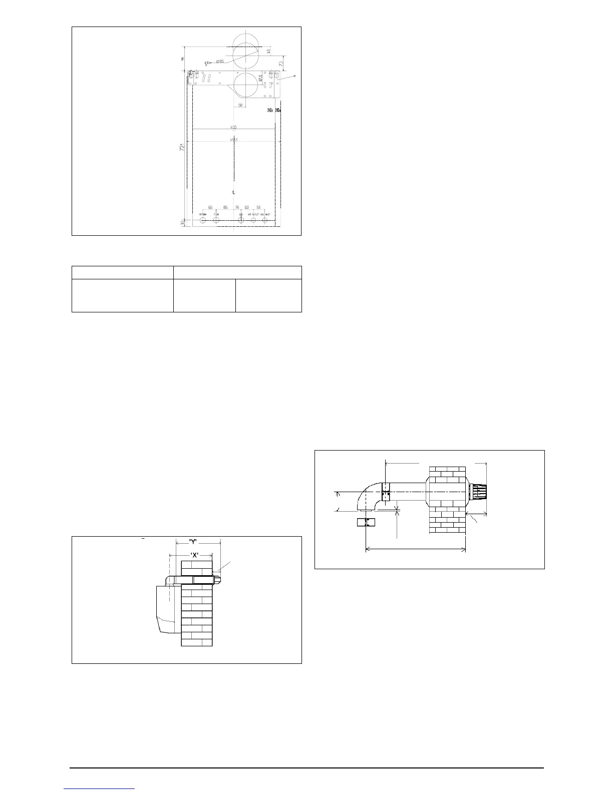
Carefully measure the distance from the centre of
the appliance flue outlet to the face of the outside
wall (dimension ‘X’, fig. 8). Add 50 mm to
dimension ‘X’ to give the overall flue length
(dimension ‘Y’). Using the complete telescopic
flue assembly adjust the length to suit dimension
Y’. Once the telescopic flue terminal has been
adjusted to the correct length, secure the flue
assembly with the screw supplied.
Insert the flue restrictor ring (supplied in the
instruction pack) into the appliance flue gas outlet.
Slide the flue assembly into the previously drilled
flue hole and locate the flue bend over the
appliance flue outlet. Push the flue bend down
over the appliance flue outlet and ensure the
correct seal is made. Pull the flue assembly
towards and over the flue bend – using a twisting
action – ensuring the correct seal is made. Check
that the terminal protrudes past the finished
outside wall by the correct length (115 mm).
NOTE
You must ensure that the entire flue system is
properly supported and connected. Seal the flue
assembly to the wall using cement or a suitable
alternative that will provide satisfactory
weatherproofing. The interior and exterior trim
can now be fitted.
FITTING THE STANDARD (2359029)
HORIZONTAL FLUE KIT (see section 4.4.1)
Carefully measure the distance from the centre
of the appliance flue outlet to the face of the
outside wall (dimension ‘X’, fig. 8A). Ensure the
inner (60 mm) pipe is fully inserted into the outer
(100 mm) pipe (when the inner pipe is fully
inserted, it stands proud of the outer pipe by 7.5
mm). Add 32 mm to dimension X to give the
overall flue length (dimension Y’). The standard
horizontal flue kit (part no. 2359029) is suitable
for a distance (dimension ‘Y’) of up to 865 mm.
NOTE
Dimension ‘Y’ is measured from the end of the
terminal to the end of the outer (100 mm) pipe.
The internal trim should be fitted to the flue pipe
before connection of the 90º bend.
Insert the flue restrictor ring (supplied with
instruction pack) into the appliance flue gas outlet
if the total flue length is less than 1.0 metre.
If the horizontal flue kit (2359029) requires to be
cut to the correct size (dimension ‘Y’), you must
ensure that the inner (60 mm) pipe stands proud
of the outer (100 mm) pipe by 7.5 mm (fig. 8B).
Ensure any burrs are filed or removed and that
any seals are located properly before assembly.
Connect the inner (60 mm) pipe of the terminal
assembly to the push-fit end of the 90º bend
(supplied) using a twisting action. Insert the
assembled flue into the previously drilled hole.
Using the clips & screws supplied, connect the
flue assembly to the boiler, ensuring that the
terminal protrudes past the finished outside wall
by the correct length (135 mm).
You must ensure that the entire flue system is
properly supported and connected.
Seal the flue assembly to the wall using cement
or a suitable alternative that will provide
satisfactory weatherproofing. The exterior trim
can now be fitted.
EXTENDING THE HORIZONTAL FLUE
If the horizontal flue requires extension/s or
additional bend/s, the standard horizontal flue
terminal (2359029) must be used. Connect the
bend – supplied with the terminal kit – to the top
of the boiler using the clips, screws & gaskets
supplied. The additional bends & extensions have
an internal push-fit connection, care should be
taken to ensure that the correct seal is made
when assembling the flue system. Connect the
required number of flue extensions or bends (up
to the maximum equivalent flue length) to the flue
terminal using the clips, screws & gaskets supplied
(fig. 8A & 8B).
type 1= centre of rear flue hole
using only 0225705 or
0225710 flue
type 2= centre of rear flue hole
for use with 2359029
type 3= for rear flue only
Fig. 8
X” + 50 mm = “Y
115 mm
Fig. 8A
Dimension “Y
Dimension “X
Max 833 mm
135 mm
7,5
110
Fig. 7
Total flue length Restrictor required
Less than 1 metre
Compact 24 Compact 28
40 mm diameter 42 mm diameter
FITTING THE TELESCOPIC FLUE KIT
(0225705 & 0225710)
3
2
1

Other manuals for VOKERA Compact

Related product manuals